Bénéficiez des services de nos partenaires locaux soigneusement sélectionnés
pour vous accompagner dans votre parcours d'achat immobilier

Appartement 56m² à chalons-en-champagne

— Chalons-En-Champagne 51000 —
76 000 €
56 m²
3 pièces

Nos partenaires locaux
Iad France - Sylvie Clement vous propose : À Châlons-en-Champagne, en bord de Marne et à deux pas de la gare, ce charmant appartement de trois pièces offre un cadre de vie agréable, idéal pour un investissement locatif. Niché au rez-de-chaussée d'une jolie copropriété en pierre, il bénéficie d'une entrée indépendante qui renforce son caractère intimiste.

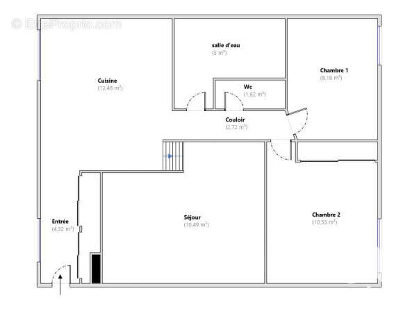
Avec une superficie d'environ 56 m², l'espace a été pensé pour conjuguer confort et fonctionnalité. La cuisine, aménagée et équipée, s'ouvre sur un salon et deux chambres dont l'une avec un placard. Une salle d'eau et des toilettes séparées assurent le quotidien avec praticité. Les nombreux rangements intégrés apportent un vrai plus à ce bien. Stationnement gratuit dans la rue.

Actuellement loué 600 ¤ par mois, auxquels s'ajoutent 60 ¤ de charges, cet appartement représente une belle opportunité pour les investisseurs. Laissez-vous convaincre par son emplacement et son charme. Pour le découvrir, il vous suffit de me contacter.

La presente annonce immobiliere vise 2 lots situés dans une copropriété de 57 lots au total et ne faisant l'objet d'aucune procédure en cours citée à l'article L. 721-1 du code de la construction et de l'habitation. Montant moyen mensuel de charges déclaré par le vendeur : 188.93¤ par mois (soit 2267.16 ¤ annuel). Honoraires d'agence à la charge du vendeur.
Information d'affichage énergétique sur ce bien : classe ENERGIE E indice 284 et classe CLIMAT E indice 61. Les informations sur les risques auxquels ce bien est exposé, y compris l'obligation légale de débroussaillement, sont disponibles sur le site Géorisques : http://www.georisques.gouv.fr.
La présente annonce immobilière a été rédigée sous la responsabilité éditoriale de Mme Sylvie Clement mandataire indépendant en immobilier (sans détention de fonds), agent commercial de la SAS I@D France immatriculé au RSAC de CHÂLONS-EN-CHAMPAGNE sous le numéro 894026251, titulaire de la carte de démarchage immobilier pour le compte de la société I@D France SAS.
Informations LOI ALUR :
Soumis au régime de copropriété.
Nombre de lots : 57.
Quote part annuelle(moyenne) : 2267.16 euros.
Honoraires charge vendeur. (gedeon_6727_31272458)
Voir plus

Référence: 1751769
Bien en copropriété. Nombre de lots : 57. Charges de copropriété : 2267 €.
Honoraires à la charge du vendeur.
DPE
A
B
C
D
E
F
G
GES
A
B
C
D
E
F
G

Prêt immobilier

Vous souhaitez connaître votre capacité d’emprunt et trouver le meilleur crédit immobilier ?
Réaliser une simulation gratuite

Photo 1 - Appartement à CHALONS-EN-CHAMPAGNE
Photo 1
Photo 2 - Appartement à CHALONS-EN-CHAMPAGNE
Photo 2
Photo 3 - Appartement à CHALONS-EN-CHAMPAGNE
Photo 3
Photo 4 - Appartement à CHALONS-EN-CHAMPAGNE
Photo 4
Photo 5 - Appartement à CHALONS-EN-CHAMPAGNE
Photo 5
Photo 6 - Appartement à CHALONS-EN-CHAMPAGNE
Photo 6
Photo 7 - Appartement à CHALONS-EN-CHAMPAGNE
Photo 7
Photo 8 - Appartement à CHALONS-EN-CHAMPAGNE
Photo 8
Ce site est protégé par reCAPTCHA la Politique de confidentialité et les Conditions d’utilisation de Google s’appliquent.
Obtenir un prêt immobilier au meilleur taux ?

En poursuivant votre navigation sans modifier vos paramètres, vous acceptez l'utilisation de cookies susceptibles de réaliser des statistiques de visite. Cliquez ici pour plus d'informations