Douvrend - chateau/ demeure 14 pieces - 11 chambres a 20 kms de dieppe

— Douvrend 76630 —
840 000 €
390 m² / 2 500 m²
14 pièces
parkingbalcon/terrasse

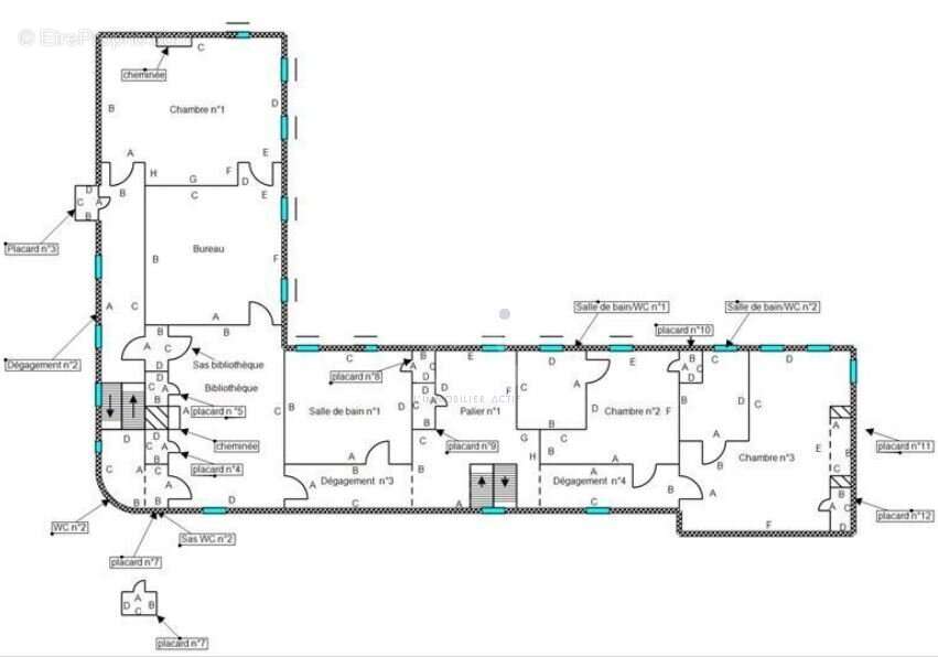
DOUVREND - CHATEAU/ DEMEURE. A proximité des commerces, de toutes les commodités et située à 20 minutes des plages de Dieppe, 30 minutes de celles du Tréport et à moins de 2h de Paris, cette Magnifique bâtisse de 14 pièces édifiée au 18ème siècle (sur 3 niveaux) est composée, au rez-de-chaussée, d'une entrée, d'un vaste séjour, d'une salle de réception ainsi que d'une cuisine moderne dinatoire aménagée et équipée. Le premier étage desservi par un escalier monumental dispose de 6 chambres (dont deux suites parentales avec leurs salles de bains) ainsi qu'une autre salle de bains. Le second étage est constitué de 6 chambres ainsi que d'une salle de bains. Plusieurs cabinets de toilettes sont à disposition à chaque étage. Une magnifique terrasse ensoleillée au calme avec vue dégagée agrémente cette demeure de prestige, l'extérieur pouvant accueillir plusieurs véhicules. Un jardin paysagé, une dépendance et deux vastes garages complètent ce bien. Prestations: La toiture ainsi que les fenêtres et baies vitrées ont bénéficié d'une restauration intégrale. Pompe à chaleur, double vitrage et assainissement individuel. Bien d'exception, Rare sur Secteur. Hôtellerie, Gites et chambres d'hôtes possibles. Contactez Carlo SCHIRONE au [Coordonnées masquées], AXO - L'immobilier Actif, Négociateur Immobilier Salarié. Plus d'informations sur www.axo.immo (réf. 85002111327) et [Coordonnées masquées]. Honoraires TTC charge vendeur. Les informations sur les risques auxquels ce bien est exposé sont disponibles sur le site Géorisques : https://www.georisques.gouv.fr/
Voir plus

Référence: 29207
Honoraires à la charge du vendeur.
Barème des honoraires
DPE
A
B
C
D
E
F
G
GES
A
B
C
D
E
F
G

Prêt immobilier

Vous souhaitez connaître votre capacité d’emprunt et trouver le meilleur crédit immobilier ?
Réaliser une simulation gratuite

Maison à DOUVREND
Maison à DOUVREND
Maison à DOUVREND
Maison à DOUVREND
Maison à DOUVREND
Maison à DOUVREND
Maison à DOUVREND
Maison à DOUVREND
Maison à DOUVREND
Ce site est protégé par reCAPTCHA la Politique de confidentialité et les Conditions d’utilisation de Google s’appliquent.
Obtenir un prêt immobilier au meilleur taux ?

En poursuivant votre navigation sans modifier vos paramètres, vous acceptez l'utilisation de cookies susceptibles de réaliser des statistiques de visite. Cliquez ici pour plus d'informations