Bénéficiez des services de nos partenaires locaux soigneusement sélectionnés
pour vous accompagner dans votre parcours d'achat immobilier

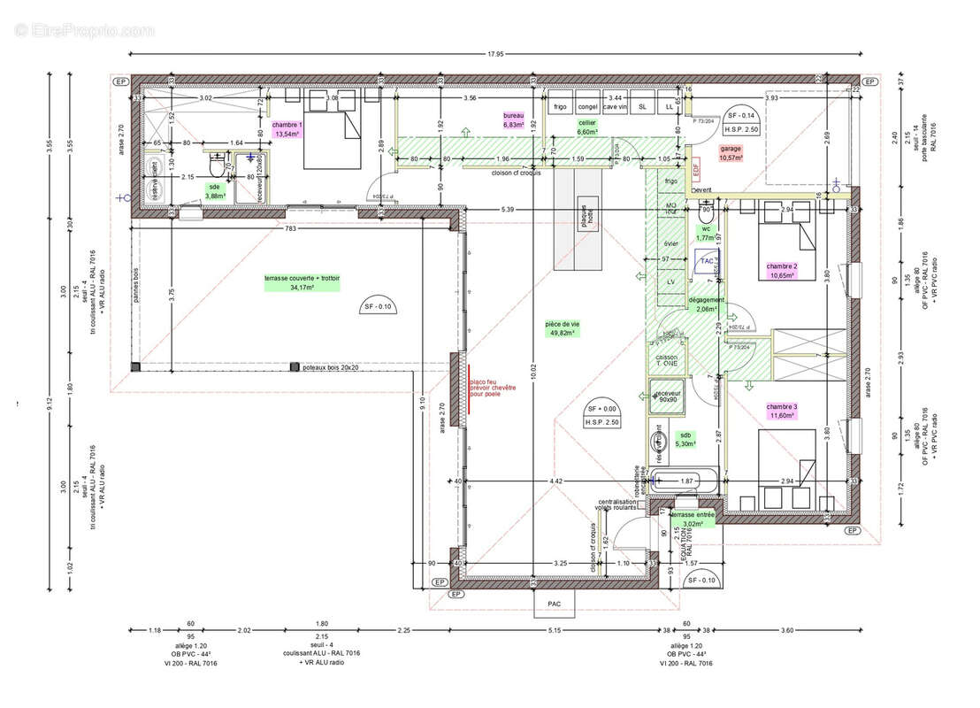
Maison 3 chambres. bureau. garage. terrasse couverte. terrain 466 m2

— Belin-Beliet 33830 —
360 000 €
112 m² / 466 m²
5 pièces
parkingbalcon/terrassejardin

Nos partenaires locaux
A VENDRE MAISON BELIN BELIET Contemporaine à Proximité du Centre-Ville

Emplacement : Située dans un charmant petit lotissement de 6 lots, cette maison contemporaine respecte les normes RT 2012 et a été construite en 2023. Son emplacement privilégié à proximité du centre-ville permet de profiter des commodités tout en bénéficiant d'un cadre paisible.

Plan intérieur : Lorsque vous entrez dans la maison, vous êtes accueilli par une entrée qui mène à un vaste espace séjour lumineux, parfait pour se détendre ou recevoir des invités. À côté de cet espace, un bureau avec une élégante verrière offre un lieu de travail agréable et inspirant. La cuisine américaine, aménagée et équipée, comprend également un bar qui invite à la convivialité et à la modernité. Un cellier pratique complète ce niveau, offrant un espace de rangement supplémentaire.

Côté nuit : Cette maison offre un agencement bien pensé avec un côté nuit qui comprend deux chambres confortables, une salle de bains moderne et un WC indépendant. De l’autre côté, une suite parentale avec une baie vitrée qui s'ouvre sur une belle terrasse couverte. Ce coin intime est complété par un dressing et une salle d'eau avec WC, garantissant un confort optimal.

À l'extérieur, une belle terrasse couverte, carrelée et parfaitement orientée, constitue un lieu idéal pour profiter des journées ensoleillées. Le terrain clos de 466 m2 est agrémenté d'un portail automatisé, garantissant sécurité et facilité d'accès.

Confort thermique : La maison est équipée d’une climatisation réversible grâce au système T.One Aqua AIR, permettant de maintenir une température agréable tout au long de l'année.

Cette maison offre un cadre de vie idyllique, alliant modernité, confort et praticité, idéale pour une famille souhaitant profiter d’un environnement calme tout en restant proche des commodités.

Vous souhaitez visiter ! Contactez Nathalie au o6.80.55.06.35

Les honoraires sont à la charge des vendeurs.

Natimmo, agence immobilière indépendante à Salles, vous accompagne dans tous vos projets d'achat, de vente et de location en Sud-Gironde et Nord des Landes avec expertise et proximité
Agence Immobilière NATIMMO à Belin-Béliet
Voir plus

Référence: 566
Honoraires à la charge du vendeur.
Barème des honoraires
DPE
A
B
C
D
E
F
G
GES
A
B
C
D
E
F
G

Prêt immobilier

Vous souhaitez connaître votre capacité d’emprunt et trouver le meilleur crédit immobilier ?
Réaliser une simulation gratuite

Maison à BELIN-BELIET
Maison à BELIN-BELIET
Maison à BELIN-BELIET
Maison à BELIN-BELIET
Maison à BELIN-BELIET
Maison à BELIN-BELIET
Maison à BELIN-BELIET
Maison à BELIN-BELIET
Maison à BELIN-BELIET
Maison à BELIN-BELIET
Maison à BELIN-BELIET
Maison à BELIN-BELIET
Maison à BELIN-BELIET
Maison à BELIN-BELIET
Maison à BELIN-BELIET
Ce site est protégé par reCAPTCHA la Politique de confidentialité et les Conditions d’utilisation de Google s’appliquent.
Obtenir un prêt immobilier au meilleur taux ?

En poursuivant votre navigation sans modifier vos paramètres, vous acceptez l'utilisation de cookies susceptibles de réaliser des statistiques de visite. Cliquez ici pour plus d'informations