Bénéficiez des services de nos partenaires locaux soigneusement sélectionnés
pour vous accompagner dans votre parcours d'achat immobilier

Maison avec jardin, sous-sol et espace indépendant – mondeville, proche caen

— Mondeville 14120 —
296 400 €
126 m² / 221 m²
5 pièces
parkingbalcon/terrassejardin

Nos partenaires locaux
À vendre, maison en pierre de Caen située à proximité immédiate de l'hypercentre de Mondeville, dans le quartier des Charmettes. La gare de Caen est accessible en 5 minutes, facilitant les déplacements quotidiens.

La commune de Mondeville dispose de nombreux commerces, d'écoles, collèges et lycées, d'un tissu associatif actif ainsi que de services publics variés, offrant un cadre de vie fonctionnel et pratique.

Maison des années 70 qui se développe sur plusieurs niveaux:

Au rez-de-chaussée : un salon avec cheminée, une salle à manger, une cuisine équipée avec accès direct au jardin, et une chambre.

À l'étage : une grande chambre, une salle de bain avec rangements, ainsi qu'un grenier.
L'agencement intérieur peut être repensé pour mieux répondre aux besoins d'aujourd'hui.

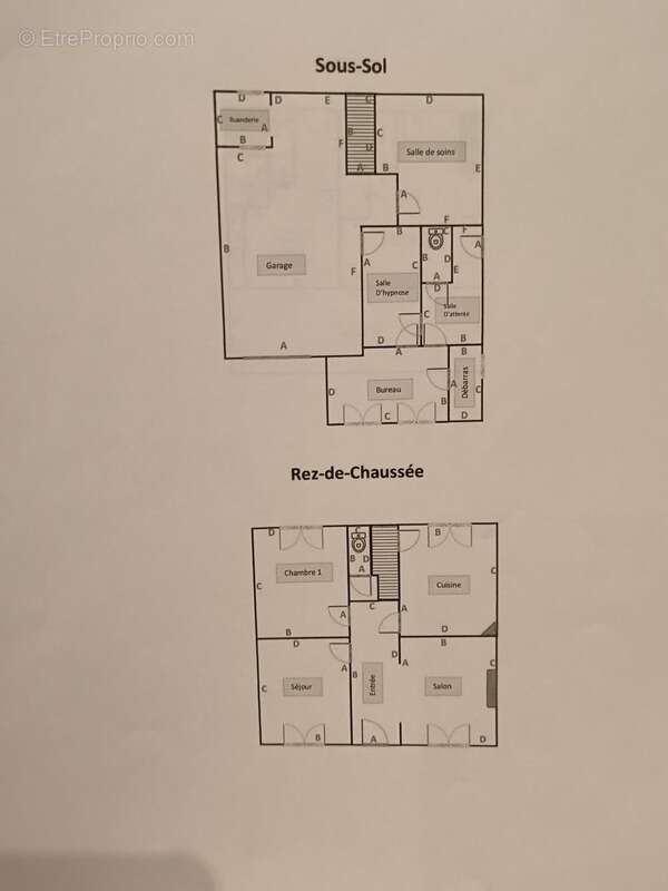
Au sous-sol : une buanderie, un garage, et un espace indépendant accessible depuis l'extérieur, comprenant une salle d'attente, un bureau, une douche, des WC, et deux pièces supplémentaires dont une avec un accès PMR.
Cet espace est peut être utilisé pour une activité libérale mais peut être transformé en studio ou en logement indépendant.

Le jardin, accessible depuis la cuisine, complète l'ensemble. Stationnement facile à proximité.

Un bien offrant plusieurs possibilités d'aménagement, aussi bien pour un usage personnel que professionnel.

Les plans en photo sont donnés à titre indicatif, non à l'échelle.
Les honoraires d'agence sont à la charge de l'acquéreur, soit 4,00% TTC du prix hors honoraires.
Les informations sur les risques auxquels ce bien est exposé sont disponibles sur le site Géorisques : www. georisques. gouv. fr.

Réseau Immobilier CAPIFRANCE - Votre agent commercial (RSAC N°943 190 223 - Greffe de CAEN) Stéphane HERVE Entrepreneur Individuel [Coordonnées masquées] - Réf.906843
Voir plus

Référence: 340936976162
DPE
A
B
C
D
E
F
G
GES
A
B
C
D
E
F
G

Prêt immobilier

Vous souhaitez connaître votre capacité d’emprunt et trouver le meilleur crédit immobilier ?
Réaliser une simulation gratuite

Maison à MONDEVILLE
Maison à MONDEVILLE
Maison à MONDEVILLE
Maison à MONDEVILLE
Maison à MONDEVILLE
Maison à MONDEVILLE
Maison à MONDEVILLE
Maison à MONDEVILLE
Maison à MONDEVILLE
Maison à MONDEVILLE
Maison à MONDEVILLE
Maison à MONDEVILLE
Maison à MONDEVILLE
Maison à MONDEVILLE
Maison à MONDEVILLE
Ce site est protégé par reCAPTCHA la Politique de confidentialité et les Conditions d’utilisation de Google s’appliquent.
Obtenir un prêt immobilier au meilleur taux ?

En poursuivant votre navigation sans modifier vos paramètres, vous acceptez l'utilisation de cookies susceptibles de réaliser des statistiques de visite. Cliquez ici pour plus d'informations