Bénéficiez des services de nos partenaires locaux soigneusement sélectionnés
pour vous accompagner dans votre parcours d'achat immobilier

Terrain 1560m² à cavalaire-sur-mer

— Cavalaire-Sur-Mer 83240 —
660 000 €
1 560 m²

Nos partenaires locaux
À Cavalaire-sur-mer, cette villa située dans un quartier résidentiel semble être une belle opportunité, surtout avec son aperçu mer et son terrain spacieux de 1560 m².

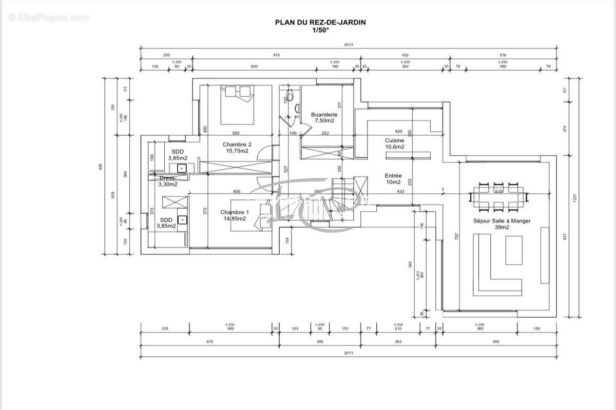
Avec ses 147 m², elle offre un agencement fonctionnel comprenant un salon/salle à manger, une cuisine, deux chambres, ainsi que des salles de bains pratiques. La mezzanine ajoute une dimension supplémentaire avec une chambre, une salle de bains et un dressing.

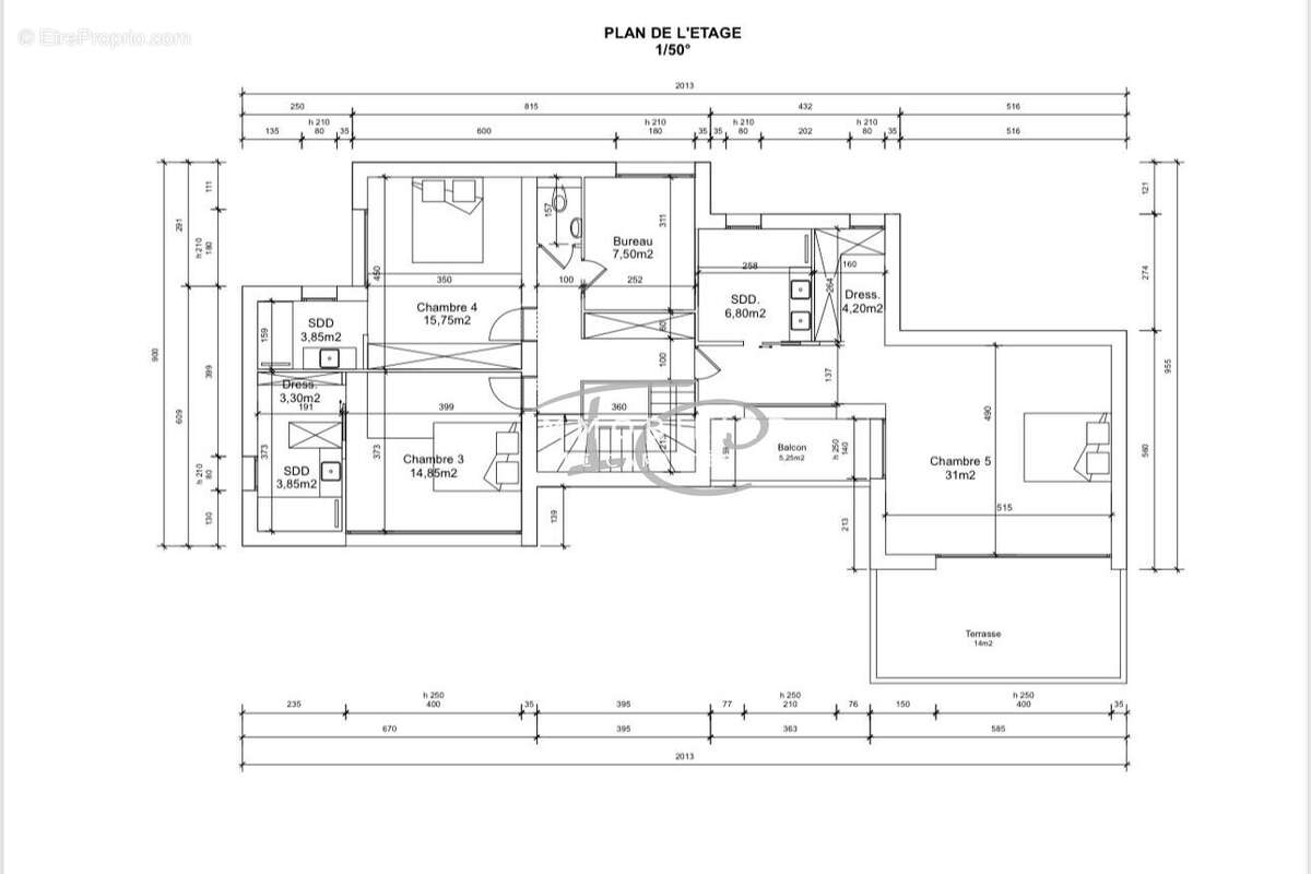
L'option d'extension et la possibilité d'ajouter une piscine sont des atouts considérables, surtout avec le permis de construire déjà purgé pour un projet ambitieux de 207 m². Ce projet propose un espace de vie généreux avec cinq chambres, dont une suite parentale spacieuse, ce qui pourrait convenir à une famille ou à ceux qui aiment recevoir.

Que vous choisissiez de rénover l'existant ou de vous lancer dans ce nouveau projet, il y a beaucoup de potentiel ici !
Voir plus

Référence: 872V5T
Honoraires à la charge du vendeur.

Prêt immobilier

Vous souhaitez connaître votre capacité d’emprunt et trouver le meilleur crédit immobilier ?
Réaliser une simulation gratuite

Terrain à CAVALAIRE-SUR-MER
Terrain à CAVALAIRE-SUR-MER
Terrain à CAVALAIRE-SUR-MER
Terrain à CAVALAIRE-SUR-MER
Ce site est protégé par reCAPTCHA la Politique de confidentialité et les Conditions d’utilisation de Google s’appliquent.
Obtenir un prêt immobilier au meilleur taux ?

En poursuivant votre navigation sans modifier vos paramètres, vous acceptez l'utilisation de cookies susceptibles de réaliser des statistiques de visite. Cliquez ici pour plus d'informations