Maison neuve t4 de plain-pied, proche des plages et des commodités

— Poggio-Mezzana 20230 —
305 000 €
80 m² / 856 m²
4 pièces
jardin

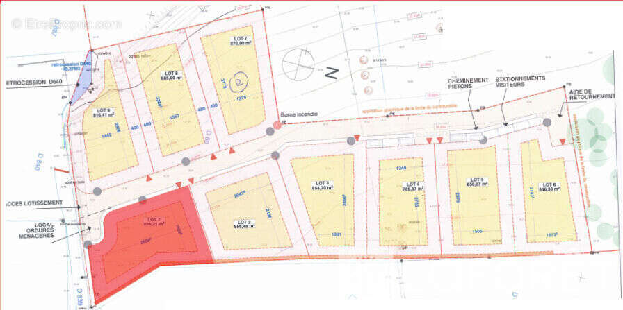
Nous vous proposons à la vente l'un des derniers lots disponibles dans un petit lotissement composé de seulement 9 maisons, situé à proximité immédiate des commerces, des écoles et à quelques minutes à peine des plages. Il s'agit d'une maison neuve de plain-pied, d'une surface habitable d'environ 80 m², implantée sur une belle parcelle de plus de 850 m². La maison sera livrée clé en main, avec des prestations de qualité, répondant aux normes RT 2020. Elle comprendra une pièce de vie lumineuse, trois chambres, une salle d'eau, ainsi que des toilettes séparés. Côté confort et équipements, vous bénéficierez de la climatisation réversible, de volets roulants électriques, de menuiseries en double vitrage et d'un ballon thermodynamique, pour une meilleure performance énergétique. La livraison est prévue pour mars 2026. Pour tout complément d'information ou pour programmer une rencontre et découvrir le projet plus en détail, n'hésitez pas à nous contacter. CONTACT Laforêt Lucciana - [Coordonnées masquées] / réf. 17560
Voir plus

Référence: 6702
Honoraires à la charge du vendeur.
Barème des honoraires

Prêt immobilier

Vous souhaitez connaître votre capacité d’emprunt et trouver le meilleur crédit immobilier ?
Réaliser une simulation gratuite

Maison à POGGIO-MEZZANA
Maison à POGGIO-MEZZANA
Maison à POGGIO-MEZZANA
Ce site est protégé par reCAPTCHA la Politique de confidentialité et les Conditions d’utilisation de Google s’appliquent.
Obtenir un prêt immobilier au meilleur taux ?

En poursuivant votre navigation sans modifier vos paramètres, vous acceptez l'utilisation de cookies susceptibles de réaliser des statistiques de visite. Cliquez ici pour plus d'informations