Bénéficiez des services de nos partenaires locaux soigneusement sélectionnés
pour vous accompagner dans votre parcours d'achat immobilier

Élégance contemporaine et confort familial — duplex d'exception de 65.34 m2 avec jardin privatif

— Villenave-D'ornon 33140 —
320 000 €
65 m² / 33 m²
3 pièces
parkingjardin

Nos partenaires locaux
*** FRAIS DE NOTAIRE REDUIT à 2.5 % hors taxes ***
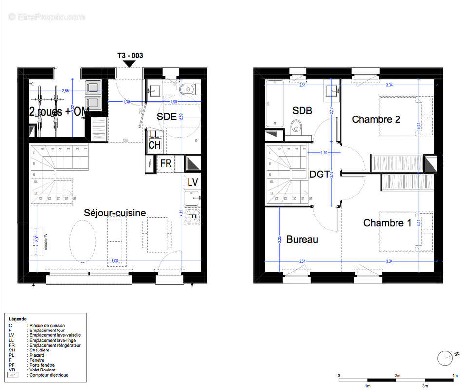
Au cœur d’un environnement paisible et recherché, découvrez ce magnifique duplex de 65.34m2, alliance parfaite entre esthétisme moderne et confort de vie.
Dès l’entrée, le ton est donné volumes généreux, lignes épurées et belle luminosité signent chaque espace.
Le séjour, baigné de lumière grâce à de larges ouvertures, s’étend sur 26m2, offrant un cadre chaleureux et accueillant pour vos moments de partage. Il s’ouvre naturellement sur un jardin privatif de 33 m2, véritable havre de paix propice à la détente.
À l’étage, l’espace nuit se compose de deux chambres. Une salle de bains avec WC ainsi qu'une pièce bureau (6m2) complètenent cet étage, idéale pour répondre aux besoins de toute la famille.
En rez-de-chaussée, une seconde salle d’eau avec WC vient compléter les prestations, apportant praticité et confort au quotidien.
Ce bien dispose de prestations soignées : carrelage en rez-de-chaussée, faïence toute hauteur dans les salles de bains, volets roulants à commande électriqueau rez-de-chaussée. Deux places de stationnement privatives et un local individuel viennent parfaire l’ensemble. Il est également possible de personnaliser les intérieurs afin de créer un lieu de vie qui vous ressemble pleinement.
Il incarne une douceur de vie remarquable, alliant charme résidentiel et tranquillité. Proche des marchés locauxet bénéficiant d’un accès rapide à la rocadepermettant de rejoindre Mérignac en 20 minutes, le quartier est également parfaitement desservi par les réseaux de transports en commun, notamment via la ligne C du tramway TBMreliant directement Bordeaux.
Le développement des infrastructures cyclablesfacilite par ailleurs les déplacements vers les établissements d’enseignement supérieur et de formation à proximité (ISVV, ISNAB, Lycée Vaclav Havel...).
Pensé pour un mode de vie moderne et fluide, ce bien séduit par son agencement équilibré, ses volumes optimisés et son atmosphère apaisante.

Contactez Swan Cailleux de Swan & Co Immo pour organiser votre visite.
Les informations sur les risques auxquels ce bien est exposé sont disponibles sur le site Géorisques : www.georisques.gouv.fr
Swan CAILLEUX est en charge de ce bien, [Coordonnées masquées] / [Coordonnées masquées]
Voir plus

Bien en copropriété. Nombre de lots : 8.
Honoraires à la charge du vendeur.
Barème des honoraires

Prêt immobilier

Vous souhaitez connaître votre capacité d’emprunt et trouver le meilleur crédit immobilier ?
Réaliser une simulation gratuite

Maison à VILLENAVE-D'ORNON
Maison à VILLENAVE-D'ORNON
Maison à VILLENAVE-D'ORNON
Maison à VILLENAVE-D'ORNON
Maison à VILLENAVE-D'ORNON
Maison à VILLENAVE-D'ORNON
Ce site est protégé par reCAPTCHA la Politique de confidentialité et les Conditions d’utilisation de Google s’appliquent.
Obtenir un prêt immobilier au meilleur taux ?

En poursuivant votre navigation sans modifier vos paramètres, vous acceptez l'utilisation de cookies susceptibles de réaliser des statistiques de visite. Cliquez ici pour plus d'informations