Bénéficiez des services de nos partenaires locaux soigneusement sélectionnés
pour vous accompagner dans votre parcours d'achat immobilier

Élégance contemporaine et confort familial — duplex d'exception de 116m2 avec jardin de 186m2, piscine et terr

— Villenave-D'ornon 33140 —
620 000 €
116 m² / 186 m²
7 pièces
parkingbalcon/terrassejardinpiscine

Nos partenaires locaux
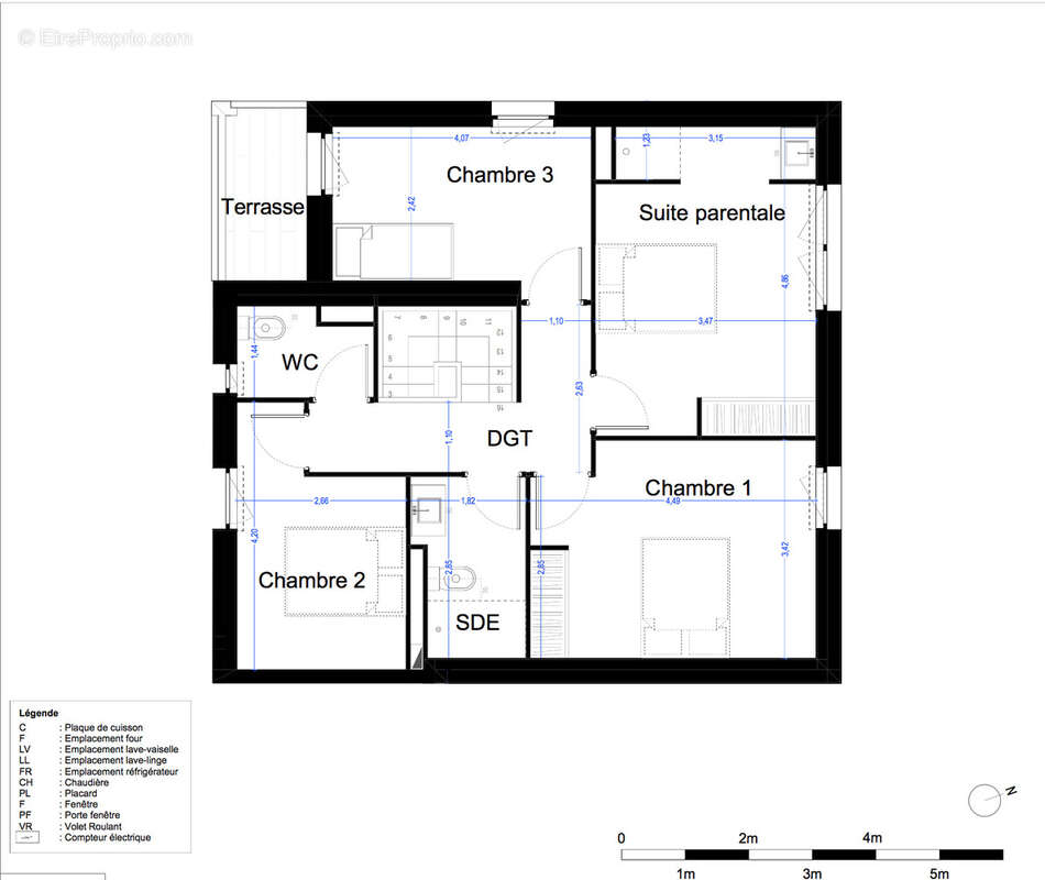
Au cœur d’un environnement paisible et recherché, découvrez ce magnifique duplex de 116m2, alliance parfaite entre esthétisme moderne et confort de vie.
Dès l’entrée, le ton est donné: volumes généreux, lignes épurées et belle luminosité signent chaque espace. Le séjour, baigné de lumière grâce à de larges ouvertures, s’étend sur38m2, offrant un cadre chaleureux et accueillant pour vos moments de partage.
Il s’ouvre naturellement sur un vaste jardin privatif de 186m2, où vous attend une piscine intimiste, véritable invitation à la détente et aux instants privilégiés en plein air.
À l’étage, l’espace nuit se compose de quatre chambres, dont une superbe suite parentale avec salle d’eau privative. La troisème chambre quant à elle bénéficie d'un accès privatif sur une terrasse. Une salle d'eau avec WC et des WC séparés complètent cet étage, parfaitement adaptée à la vie de famille. En rez-de-chaussée, une seconde salle de bains avec WC et une chambre viennent parfaire les prestations.
Ce bien offre des équipements de qualité carrelage en rez-de chaussée, faïence toute hauteur dans les salles de bains, volets roulants à commande électrique en rez-de-chaussée, deux places de stationnement privatives, ainsi qu’un local individuel.
Il est également possible de personnaliser les intérieurs, pour créer un espace à votre image.
Ce lieu de vie incarne une douceur de vivre remarquable, alliant charme résidentiel, tranquillité et accessibilité. À proximité des marchés locaux, le quartier bénéficie d’un accès rapide à la rocade (Mérignac en 20 minutes) et d’une excellente connexion aux transports en commun : tramway ligne C, bus, et réseau cyclable facilitant l’accès aux établissements d’enseignement supérieur (ISVV, ISNAB, Lycée Vaclav Havel...).
Pensé pour un mode de vie fluide, raffiné et apaisé, ce bien conjugue espace, intimité et prestations dans un cadre privilégié.
Contactez Swan Cailleux de Swan & Co Immo pour organiser votre visite.
Les informations sur les risques auxquels ce bien est exposé sont disponibles sur le site Géorisques : www.georisques.gouv.fr
Swan CAILLEUX est en charge de ce bien, [Coordonnées masquées] / [Coordonnées masquées]
Voir plus

Bien en copropriété. Nombre de lots : 8.
Honoraires à la charge du vendeur.
Barème des honoraires

Prêt immobilier

Vous souhaitez connaître votre capacité d’emprunt et trouver le meilleur crédit immobilier ?
Réaliser une simulation gratuite

Maison à VILLENAVE-D'ORNON
Maison à VILLENAVE-D'ORNON
Maison à VILLENAVE-D'ORNON
Maison à VILLENAVE-D'ORNON
Maison à VILLENAVE-D'ORNON
Maison à VILLENAVE-D'ORNON
Ce site est protégé par reCAPTCHA la Politique de confidentialité et les Conditions d’utilisation de Google s’appliquent.
Obtenir un prêt immobilier au meilleur taux ?

En poursuivant votre navigation sans modifier vos paramètres, vous acceptez l'utilisation de cookies susceptibles de réaliser des statistiques de visite. Cliquez ici pour plus d'informations