Commerce 294m² à saint-omer

— Saint-Omer 62500 —
597 000 €
294 m²
2 pièces

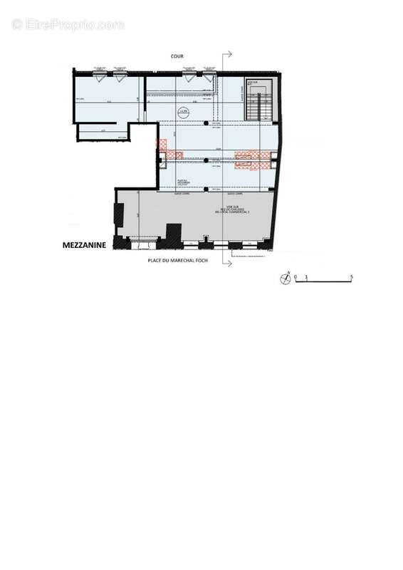
A VENDRE - Au coeur de SAINT-OMER : Cellule commerciale neuve de 294 m² livrée brute, à agencer. Elle comprend un espace commercial de 163 m² au rez-de-chaussée et une mezzanine de 131 m² pour le personnel (bureaux, salles de réunion, local social,...). Emplacement premium de standing au sein de la résidence du Théâtre, offrant une forte visibilité. L'espace commercial du rez-de-chaussée dispose de 3 vitrines de 1,35 m chacune. Ce local commercial neuf est livré nu avec sol en béton brut et espaces à cloisonner. Les réseaux de gaz et d'eau froide ainsi que les évacuations sont en attente pour les futurs espaces sanitaires.
Cet espace commercial est idéalement situé au coeur de Saint-Omer, sur la place Foch rénovée et végétalisée.
Stationnement à proximité, sur le parking de la place Foch ou sur le parking (gratuit) de l'Esplanade.

Construction répondant aux normes RT2012. Menuiseries extérieures en alu, vitrage anti effraction STADIP 33-1. Locaux neufs et bruts, non soumis au diagnostic de performance énergétique. Ces locaux disposeront de leur compteur individuel pour l'électricité, l'eau et le gaz. Le règlement de copropriété exclut les activités de type restauration et boite de nuit. Copropriété de 49 lots dont 2 cellules commerciales et 19 lots d'habitation.
Ref : MAH2621. Prix : 597.000 euros HT, dont 27.923 euros d'honoraires charge vendeur.

HELMAN IMMOBILIER, 22 place Pierre Bonhomme 62500 SAINT-OMER.
Tel : [Coordonnées masquées].

Plus d'informations sur ce local commercial neuf : https://www.helman-immobilier.com/fr/vente/immobilier-pro-local-commercial-neuf-294m2-saint-omer,VP198

Honoraires à la charge du vendeur. Dans une copropriété de 49 lots. Aucune procédure n'est en cours. Non soumis au DPE. Les informations sur les risques auxquels ce bien est exposé sont disponibles sur le site Géorisques : georisques.gouv.fr.
.
HELMAN IMMOBILIER, 22 place Pierre Bonhomme, 62500 Saint-Omer. France. Tél.+33.3.21.88.89.19. Mail : [Coordonnées masquées]
Voir plus

Référence: VP198-HELMAN
Bien en copropriété. Nombre de lots : 49.
Honoraires à la charge du vendeur.
Barème des honoraires

Prêt immobilier

Vous souhaitez connaître votre capacité d’emprunt et trouver le meilleur crédit immobilier ?
Réaliser une simulation gratuite

Commerce à SAINT-OMER
Commerce à SAINT-OMER
Commerce à SAINT-OMER
Commerce à SAINT-OMER
Ce site est protégé par reCAPTCHA la Politique de confidentialité et les Conditions d’utilisation de Google s’appliquent.
Obtenir un prêt immobilier au meilleur taux ?

En poursuivant votre navigation sans modifier vos paramètres, vous acceptez l'utilisation de cookies susceptibles de réaliser des statistiques de visite. Cliquez ici pour plus d'informations