Maison 113m² à eyzin-pinet

— Eyzin-Pinet 38780 —
365 000 €
113 m² / 1 542 m²
4 pièces
parkingbalcon/terrassejardinaccès handicapé

PIETRAPOLIS IMMOBILIER VIENNE vous propose, sur EYZIN-PINET (Secteur LE ROUSSET), cette maison à rafraichir de plain-pied avec sous-sol complet, au calme, comprenant 4 pièces dont 3 chambres, d'une surface de 113m2 sur parcelle de terrain arborée de 1542m2 (Zone Uh). Vue campagne.

Environnement :
- Calme
- École maternelle et primaire : 5mn
- Commerces : 5mn

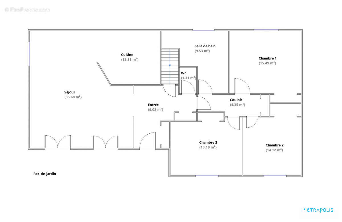
Rez-de-chaussée :
- Un salon / salle à manger
- Espace cuisine
- Un hall avec placards
- 3 chambres avec placards
- Une salle de bains + douche
- Des toilettes

Sous-sol :
- Garage
- Pièce buanderie
- Pièce cave
- Sous-sol complet

En extérieur :
- Une terrasse 20m2
- Un terrain plat
- Une cabane de rangement

Compléments :
- Salon ouvert sur terrasse sud
- Menuiseries bois double-vitrage
- Volets électriques solaires
- Poêle granulés bois avec soufflerie (2010)
- Ballon d'eau chaude 150L (2023)
- VMC simple flux
- Toiture en bon état
- Zinguerie en bon état
- Fibre
- Alarme
- Piscinable
- DPE D
- Fosse septique (mais passage au tout à l'égout en 2025 : raccordement 6000€)
- Taxe foncière : 1201 €


Honoraires d'agence à la charge du vendeur

Contacter Cyril MARGOUILLAT au [Coordonnées masquées] ou [Coordonnées masquées]

Honoraires à la charge du vendeur. Classe énergie D, Classe climat B Montant moyen estimé des dépenses annuelles d'énergie pour un usage standard, établi à partir des prix de l'énergie de l'année 2023 : entre 2060.00 et 2830.00 €. Les informations sur les risques auxquels ce bien est exposé sont disponibles sur le site Géorisques : georisques.gouv.fr.

Carte pro. CPI38[Coordonnées masquées]00011
Voir plus

Référence: 277-PIETRAPOLIS
Honoraires à la charge du vendeur.
Barème des honoraires
DPE
A
B
C
D
E
F
G
GES
A
B
C
D
E
F
G

Prêt immobilier

Vous souhaitez connaître votre capacité d’emprunt et trouver le meilleur crédit immobilier ?
Réaliser une simulation gratuite

Maison à EYZIN-PINET
Maison à EYZIN-PINET
Maison à EYZIN-PINET
Maison à EYZIN-PINET
Maison à EYZIN-PINET
Maison à EYZIN-PINET
Maison à EYZIN-PINET
Maison à EYZIN-PINET
Maison à EYZIN-PINET
Ce site est protégé par reCAPTCHA la Politique de confidentialité et les Conditions d’utilisation de Google s’appliquent.
Obtenir un prêt immobilier au meilleur taux ?

En poursuivant votre navigation sans modifier vos paramètres, vous acceptez l'utilisation de cookies susceptibles de réaliser des statistiques de visite. Cliquez ici pour plus d'informations