Terrain 417m² à negreville

— Negreville 50260 —
58 000 €
417 m²
jardin

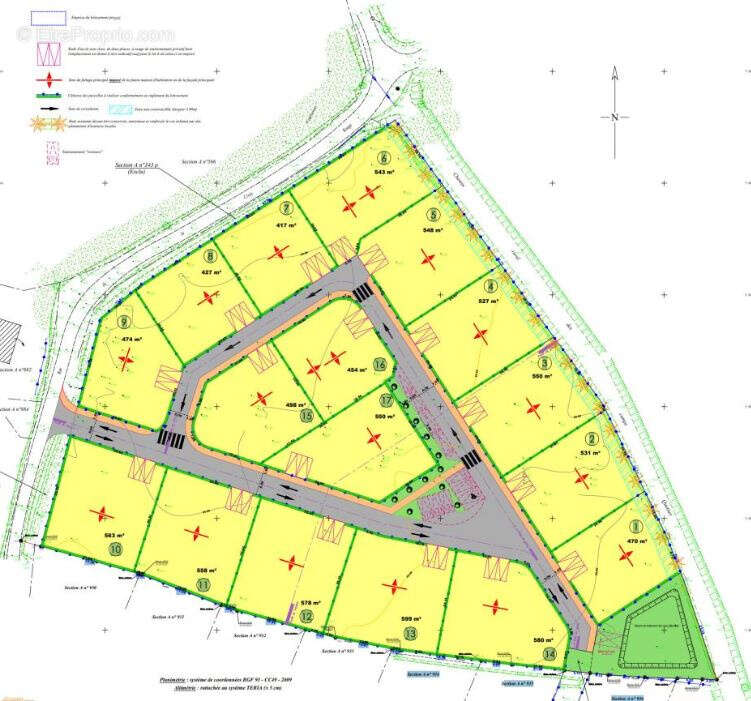
NEGREVILLE Le Cabinet FAUDAIS vous présente ne nouveaux terrains à bâtir dans un lotissement comprenant 17 lots. Surface de 417 m2 à 599 m2. Viabilisé, libre de constructeur, saisissez l'opportunité de construire votre propre projet immobilier !
Prix de vente à partir de 58000€

Référence: 39301
Honoraires à la charge du vendeur.
Barème des honoraires

Prêt immobilier

Vous souhaitez connaître votre capacité d’emprunt et trouver le meilleur crédit immobilier ?
Réaliser une simulation gratuite

Terrain à NEGREVILLE
Terrain à NEGREVILLE
Terrain à NEGREVILLE
Terrain à NEGREVILLE
Ce site est protégé par reCAPTCHA la Politique de confidentialité et les Conditions d’utilisation de Google s’appliquent.
Obtenir un prêt immobilier au meilleur taux ?

En poursuivant votre navigation sans modifier vos paramètres, vous acceptez l'utilisation de cookies susceptibles de réaliser des statistiques de visite. Cliquez ici pour plus d'informations