T4 - jardin, piscine et tennis

— Lyon-5e 69005 —
635 000 €
124 m² / 180 m²
4 pièces
parkingbalcon/terrassejardin

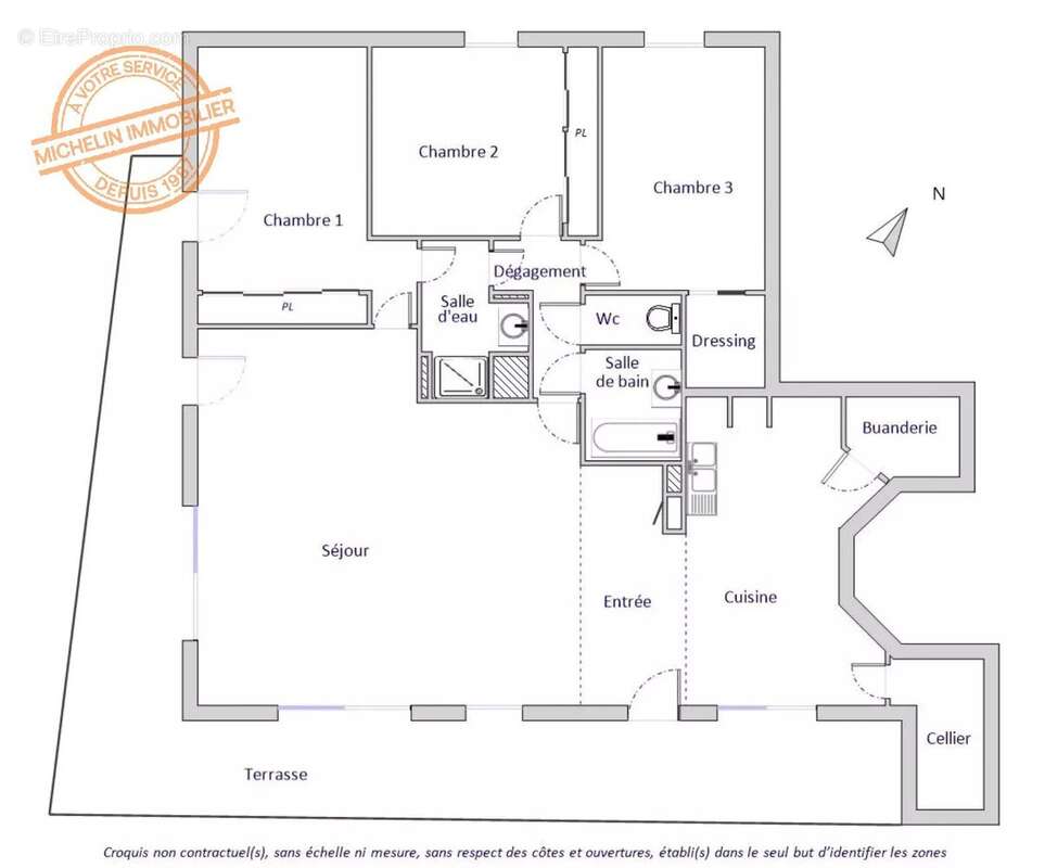
En plein coeur de la montée de Choulans entouré de verdure, venez découvrir ce charmant rez-de-jardin T4 de 124,11 m2 sans vis à vis avec son entrée indépendante.

Son agencement est agréable et fonctionnel. C'est un bien hybride entre l'appartement et la maison. Idéal pour profiter des belles journées printanières et estivales.

Une pièce de vie de 64 m2 avec cuisine équipée, cellier attenant et buanderie.
Une chambre avec dressing.
Une chambre avec placards muraux.
Une chambre parentale avec salle d'eau.
Une salle de bain et wc séparé.
A l'extérieur, une belle terrasse abritée de 41,50 m2 avec un jardin privatif de 180 m2.
Un garage double et une place de stationnement privée.

La copropriété de 2006 est bien entretenue et vous offre un cadre de vie agréable avec un parc, une piscine et un court de tennis tout en étant en plein centre de Lyon rapidement.

Environnement et cadre de vie
Le secteur est résidentiel et bénéficie d’une proximité immédiate avec des sites patrimoniaux majeurs tels que la basilique de Fourvière et le théâtre antique de Lyon. La montée de Choulans est également bordée par la place Eugène-Wernert, où sont exposés des mausolées gallo-romains, témoins du riche passé historique de la ville.

Accessibilité
• Bus : lignes C20, C21, 55, 90, entre autres.
• Métro : station Perrache (ligne A) à environ 4 minutes de marche.
• Funiculaire : station Saint-Just à proximité.
• Train : Gare de Lyon-Perrache accessible en moins de 10 minutes à pied .

Informations Loi Alur :
Surface loi carrez : 124,11 m2
Taxe foncière 2024 : 1904 Euros
L'immeuble est soumis au régime de la copropriété et composé de 43 lots principaux.
Pas de procédure connue à ce jour.
Consommation conventionnelle : 184 kWh ep/m2.an (Classe D)
Estimation des émissions : 5 kg eqCO2/m2.an (Classe A)
Les charges annuelles de copropriété sont de 2832,23 € soit 708,05 € / trimestre soit 236,02€ / mois.
et comprennent l'eau froide, la températion, l’entretien des parties communes, l’électricité des parties communes, les espaces verts, la piscine, le tennis…
Estimation des coûts annuels : entre 1 750 € et 2 410 € par an, prix moyens des énergies indexés sur les années.
Prix : 635000 euros Honoraires Agence Inclus à la charge du vendeur. (EI) Contact commercial privilégié : Maëlle SAGET [Coordonnées masquées]
Voir plus

Référence: 85951663
Barème des honoraires
DPE
A
B
C
D
E
F
G
GES
A
B
C
D
E
F
G

Prêt immobilier

Vous souhaitez connaître votre capacité d’emprunt et trouver le meilleur crédit immobilier ?
Réaliser une simulation gratuite

Maison à LYON-5E
Maison à LYON-5E
Maison à LYON-5E
Maison à LYON-5E
Maison à LYON-5E
Maison à LYON-5E
Maison à LYON-5E
Maison à LYON-5E
Maison à LYON-5E
Ce site est protégé par reCAPTCHA la Politique de confidentialité et les Conditions d’utilisation de Google s’appliquent.
Obtenir un prêt immobilier au meilleur taux ?

En poursuivant votre navigation sans modifier vos paramètres, vous acceptez l'utilisation de cookies susceptibles de réaliser des statistiques de visite. Cliquez ici pour plus d'informations