Terrain 204m² à le havre

— Le Havre 76610 —
82 000 €
204 m²

Iad France - Arnaud FRANKHAUSER vous propose : Opportunité Rare - Terrain Constructible de 200 m² à Le Havre avec permis de construire!
Exceptionnel ! Vous cherchez à réaliser votre projet de construction?
Ce terrain constructible de 200 m², situé à Le Havre, est l'opportunité qu'il vous faut pour concrétiser vos rêves. Avec une emprise au sol idéale, ce terrain offre un potentiel de construction pour une maison 5 pièces.
Idéalement situé dans un quartier calme et résidentiel de Le Havre, ce terrain vous offre un cadre de vie paisible tout en étant proche des commodités du quotidien.
Les écoles, commerces, transports en commun et espaces verts sont facilement accessibles, vous offrant ainsi un cadre de vie agréable et pratique pour toute la famille.
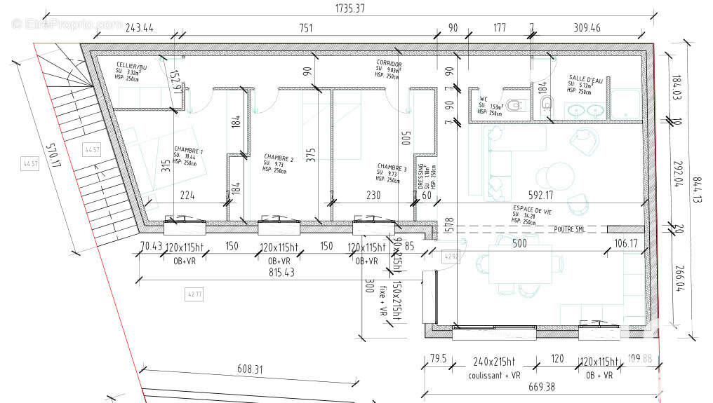
Le terrain est viabilisé et raccordé aux réseaux essentiels tels que l'électricité, l'eau potable, les eaux usées et pluviales. Ce projet est vendu avec un permis de construire validé ( voir plans joints).
Ne ratez pas cette occasion unique de concrétiser votre projet de construction dans un environnement privilégié à Le Havre.
Contactez-moi dès maintenant pour plus d'informations et pour organiser une visite.

Honoraires d'agence à la charge du vendeur.
Bien non soumis au DPE. Les informations sur les risques auxquels ce bien est exposé, y compris l'obligation légale de débroussaillement, sont disponibles sur le site Géorisques : http://www.georisques.gouv.fr.
La présente annonce immobilière a été rédigée sous la responsabilité éditoriale de M Arnaud FRANKHAUSER mandataire indépendant en immobilier (sans détention de fonds), agent commercial de la SAS I@D France immatriculé au RSAC de Le Havre sous le numéro 890755606, titulaire de la carte de démarchage immobilier pour le compte de la société I@D France SAS.
Informations LOI ALUR :
Honoraires charge vendeur. (gedeon_6727_31287994)
Voir plus

Référence: 1765660
Honoraires à la charge du vendeur.

Prêt immobilier

Vous souhaitez connaître votre capacité d’emprunt et trouver le meilleur crédit immobilier ?
Réaliser une simulation gratuite

Photo 1 - Terrain à LE HAVRE
Photo 1
Photo 2 - Terrain à LE HAVRE
Photo 2
Photo 3 - Terrain à LE HAVRE
Photo 3
Photo 4 - Terrain à LE HAVRE
Photo 4
Photo 5 - Terrain à LE HAVRE
Photo 5
Ce site est protégé par reCAPTCHA la Politique de confidentialité et les Conditions d’utilisation de Google s’appliquent.
Obtenir un prêt immobilier au meilleur taux ?

En poursuivant votre navigation sans modifier vos paramètres, vous acceptez l'utilisation de cookies susceptibles de réaliser des statistiques de visite. Cliquez ici pour plus d'informations