Bénéficiez des services de nos partenaires locaux soigneusement sélectionnés
pour vous accompagner dans votre parcours d'achat immobilier

Versant hautacam - vue imprenable pour cette très belle propriété.

— Argeles-Gazost 65400 —
485 000 €
138 m² / 859 m²
6 pièces
parkingbalcon/terrassejardin

Nos partenaires locaux
VERSANT HAUTACAM - Vue imprenable pour cette très belle propriété.
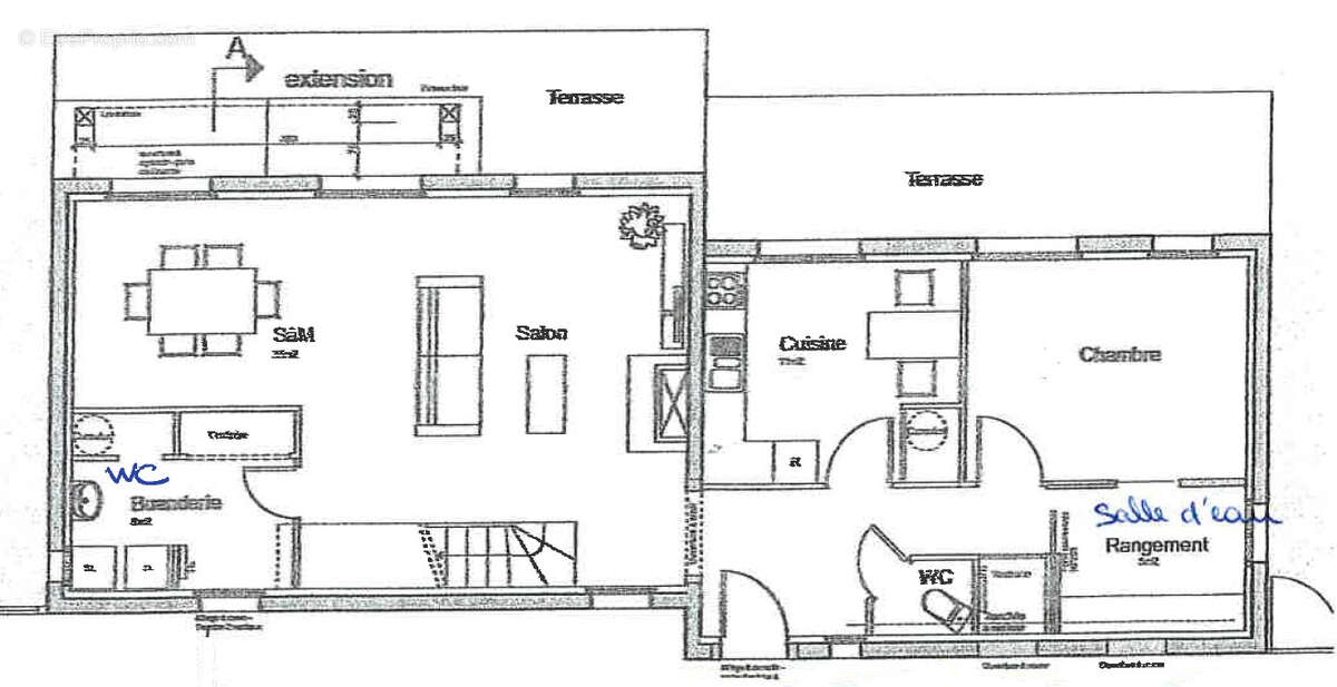
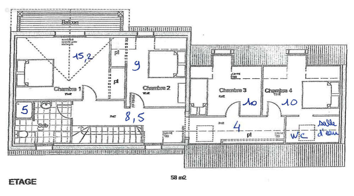
Située en position dominante et à 2kms d'ARGELES, venez découvrir cette propriété édifiée en 2002 et entièrement rénovée en 2011/2012.
Sur une parcelle fleurie et arborée d'environ 850m2 (avec la possibilité d'acheter du terrain en plus ou en moins), la maison est d'une surface au sol de 150m2 et d'une surface habitable de 138m2 sur ses 2 niveaux. Elle dispose d'un plain-pied avec 5 chambres, 4 salles d'eau/bains et 4 WC (dont 2 suites parentales avec douche et WC). Entrée avec placards, séjour/salle à manger avec cheminée/insert bois (accès terrasse), cuisisne séparée et aménagée, WC et espace buanderie, et une 1ère suite parentale. A l'étage : 3 chambres, une salle d'eau avec WC et une seconde suite parentale. Grâce à sa grande terrasse d'environ 50m2, vous pourrez profitez d'une vue à couper le souffle !
En complément, 2 garages avec greniers, et places de parkings. N'hésitez pas à nous appeler pour tous renseignements complémentaires.
Très belle propriété à visiter uniquement sur rendez-vous.
Les informations sur les risques auxquels ce bien est exposé sont disponibles sur le site Géorisques : www.georisques.gouv.fr
Voir plus

Honoraires d'agence de 3.19% à la charge de l'acquéreur
Barème des honoraires
DPE
A
B
C
D
E
F
G
GES
A
B
C
D
E
F
G

Prêt immobilier

Vous souhaitez connaître votre capacité d’emprunt et trouver le meilleur crédit immobilier ?
Réaliser une simulation gratuite

Maison à ARGELES-GAZOST
Maison à ARGELES-GAZOST
Maison à ARGELES-GAZOST
Maison à ARGELES-GAZOST
Maison à ARGELES-GAZOST
Maison à ARGELES-GAZOST
Maison à ARGELES-GAZOST
Maison à ARGELES-GAZOST
Maison à ARGELES-GAZOST
Maison à ARGELES-GAZOST
Maison à ARGELES-GAZOST
Maison à ARGELES-GAZOST
Maison à ARGELES-GAZOST
Maison à ARGELES-GAZOST
Maison à ARGELES-GAZOST
Maison à ARGELES-GAZOST
Maison à ARGELES-GAZOST
Ce site est protégé par reCAPTCHA la Politique de confidentialité et les Conditions d’utilisation de Google s’appliquent.
Obtenir un prêt immobilier au meilleur taux ?

En poursuivant votre navigation sans modifier vos paramètres, vous acceptez l'utilisation de cookies susceptibles de réaliser des statistiques de visite. Cliquez ici pour plus d'informations