Terrain de 877m² - sevrier

— Sevrier 74320 —
435 000 €
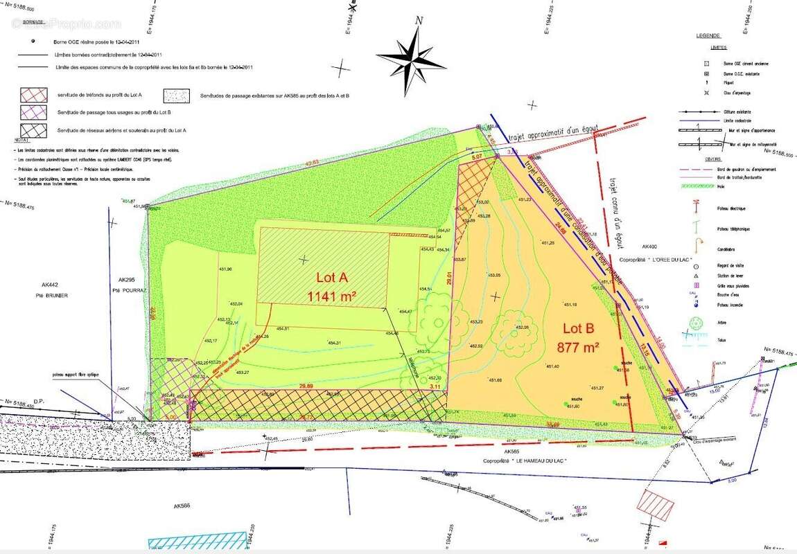
877 m²

Sur la commune de SEVRIER, nous vous proposons suite à une division parcellaire, un terrain de 877m² permettant la construction d'une maison de 150m² de surface plancher avec garage et piscine, avec une hauteur possible de 9m permettant d'avoir au minimum 4 chambres dont une au RDC. Permis purgé de tout recours. Non viabilisé, mais les réseaux sont à proximités. Prix de Vente : 435.000€ Honoraires charges vendeur Les informations sur les risques auxquels ce bien est exposé sont disponibles sur le site Géorisques : www.georisques.gouv.fr
Voir plus

Référence: 250505
Honoraires à la charge du vendeur.
Barème des honoraires

Prêt immobilier

Vous souhaitez connaître votre capacité d’emprunt et trouver le meilleur crédit immobilier ?
Réaliser une simulation gratuite

Terrain à SEVRIER
Terrain à SEVRIER
Ce site est protégé par reCAPTCHA la Politique de confidentialité et les Conditions d’utilisation de Google s’appliquent.
Obtenir un prêt immobilier au meilleur taux ?

En poursuivant votre navigation sans modifier vos paramètres, vous acceptez l'utilisation de cookies susceptibles de réaliser des statistiques de visite. Cliquez ici pour plus d'informations