Pas de appartement à Bosc-Le-Hard pour le moment. Découvrez dès maintenant les appartements dans le département Seine-Maritime.
Bénéficiez des services de nos partenaires locaux soigneusement sélectionnés
pour vous accompagner dans votre parcours d'achat immobilier

Commerce 3073m² à sarcelles

— Sarcelles 95200 —
4 210 000 €
3 073 m²

Nos partenaires locaux
Iad France - Anwar Boudghene ([Coordonnées masquées]) vous propose : INVESTISSEMENT - Immeuble de rapport à fort potentiel
Implanté dans un secteur dynamique, cet immeuble de rapport bénéficie d'un emplacement stratégique, avec une excellente accessibilité aux principaux axes routiers et aux transports en commun.
Caractéristiques clés :

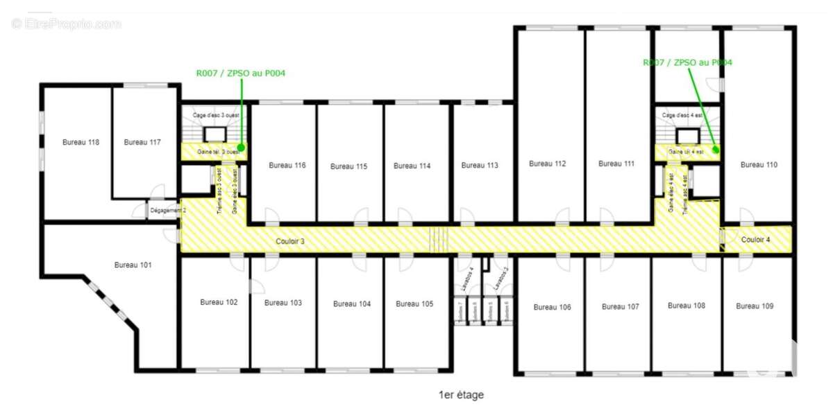
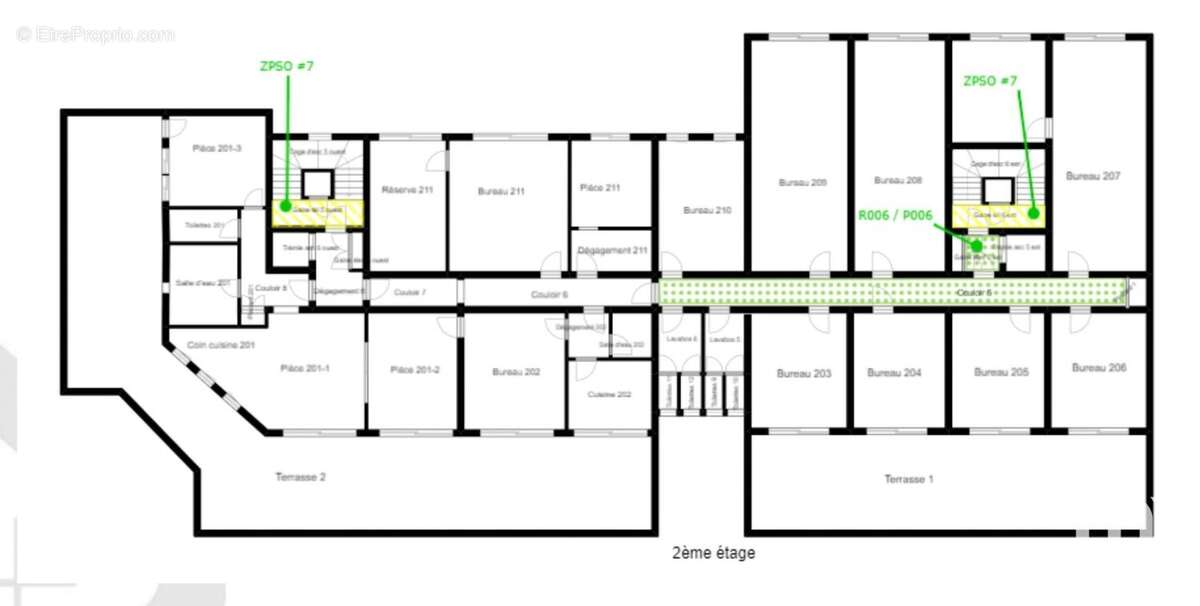
Surface totale : 3 073 m² environ

Nombre d'étages : 4

État général : Bon

Accessibilité : Tramway (ligne 5), RD 301 et RD 316, lignes de bus

Comprenant : 57 bureaux, 3 Appartements, 15 Réserves, 6 parkings, 1 local PC, 2 locaux communs soit 84 locaux et 27 parking extérieurs, 2 ascenseurs,

Avec un fort potentiel de rentabilité, ce bien constitue une opportunité d'investissement stable et pérenne, idéal pour valoriser durablement votre patrimoine.
Pour toute informations complémentaire, n'hésitez pas a me contacter.

Information d'affichage énergétique sur le bien associé à cette annonce : DPE NS indice 0 et GES NS indice 0. La présente annonce immobilière a été rédigée sous la responsabilité éditoriale de M. Anwar Boudghene (ID 27950), Agent Commercial mandataire en immobilier immatriculé au Registre Spécial des Agents Commerciaux (RSAC) du Tribunal de Commerce de CRETEIL sous le numéro 835359779
Retrouvez tous nos biens sur notre site internet. www.iadfrance.fr.
Informations LOI ALUR :
Honoraires charge vendeur. (gedeon_6727_31166077)
Voir plus

Référence: 1750671
Honoraires à la charge du vendeur.

Prêt immobilier

Vous souhaitez connaître votre capacité d’emprunt et trouver le meilleur crédit immobilier ?
Réaliser une simulation gratuite

Photo 1 - Commerce à SARCELLES
Photo 1
Photo 2 - Commerce à SARCELLES
Photo 2
Photo 3 - Commerce à SARCELLES
Photo 3
Photo 4 - Commerce à SARCELLES
Photo 4
Photo 5 - Commerce à SARCELLES
Photo 5
Ce site est protégé par reCAPTCHA la Politique de confidentialité et les Conditions d’utilisation de Google s’appliquent.
Obtenir un prêt immobilier au meilleur taux ?

En poursuivant votre navigation sans modifier vos paramètres, vous acceptez l'utilisation de cookies susceptibles de réaliser des statistiques de visite. Cliquez ici pour plus d'informations