Commerce 900m² à lubersac

— Lubersac 19210 —
265 000 €
900 m²

Iad France - Rémi CRÉTIN ([Coordonnées masquées]) vous propose : LUBERSAC / MURS COMMERCIAUX / 900 m² environ DE SURFACE / PARKING
-
Au bord de l'AUVÉZÈRE, à 10min de l'A20,30min de Limoges et de Brive-la-Gaillarde, venez découvrir ce vaste bâtiment à usage commercial avec fort potentiel de développement pour le niveau local.
-
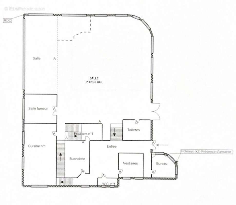
3 plateaux pour un ensemble de 900 m² environ vous y attendent.
-
De plain-pied, vous pourrez trouver une vaste salle de réception près de 190 m² environ avec vue sur l'AUVÉZÈRE, un espace cuisine (25 m² environ), un espace vestiaire et des sanitaires.
-
À l'étage, la partie Hôtel offre un plateau de 170 m² environ avec 9 chambres (avec douche) et accès aux terrasses avant et arrière, 1 appartement privé de 72 m² environ avec 2 chambres et une cuisine.
-
En sous-sol, se trouvent un espace commercial de 156 m² environ (avec espace SAUNA et JACUZZY) et une partie réserve de 85 m² environ avec une porte sectionnelle de 3,30x3,30m.
-
Tableau électrique ok, chaudière gaz cuve ok (8ans), Étanchéité toits terrasses ok, assainissement conforme.
-
Parking 50 voitures environ entièrement goudronné et clos.
-
Licence IV incluse.

Information d'affichage énergétique sur le bien associé à cette annonce : DPE NS indice 0 et GES NS indice 0. La présente annonce immobilière a été rédigée sous la responsabilité éditoriale de M. Rémi CRÉTIN (ID 43813), Agent Commercial mandataire en immobilier immatriculé au Registre Spécial des Agents Commerciaux (RSAC) du Tribunal de Commerce de LIMOGES sous le numéro 880468327
Retrouvez tous nos biens sur notre site internet. www.iadfrance.fr.
Informations LOI ALUR :
Honoraires charge vendeur. (gedeon_6727_31295251)
Voir plus

Référence: 1769636
Honoraires à la charge du vendeur.

Prêt immobilier

Vous souhaitez connaître votre capacité d’emprunt et trouver le meilleur crédit immobilier ?
Réaliser une simulation gratuite

Photo 1 - Commerce à LUBERSAC
Photo 1
Photo 2 - Commerce à LUBERSAC
Photo 2
Photo 3 - Commerce à LUBERSAC
Photo 3
Photo 4 - Commerce à LUBERSAC
Photo 4
Photo 5 - Commerce à LUBERSAC
Photo 5
Photo 6 - Commerce à LUBERSAC
Photo 6
Photo 7 - Commerce à LUBERSAC
Photo 7
Photo 8 - Commerce à LUBERSAC
Photo 8
Ce site est protégé par reCAPTCHA la Politique de confidentialité et les Conditions d’utilisation de Google s’appliquent.
Obtenir un prêt immobilier au meilleur taux ?

En poursuivant votre navigation sans modifier vos paramètres, vous acceptez l'utilisation de cookies susceptibles de réaliser des statistiques de visite. Cliquez ici pour plus d'informations