Bénéficiez des services de nos partenaires locaux soigneusement sélectionnés
pour vous accompagner dans votre parcours d'achat immobilier

Dernier étage double rooftop exceptionnelle avec vue mer - cannes

— Cannes 06400 —
895 000 €
97 m²
3 pièces
balcon/terrasse

Nos partenaires locaux
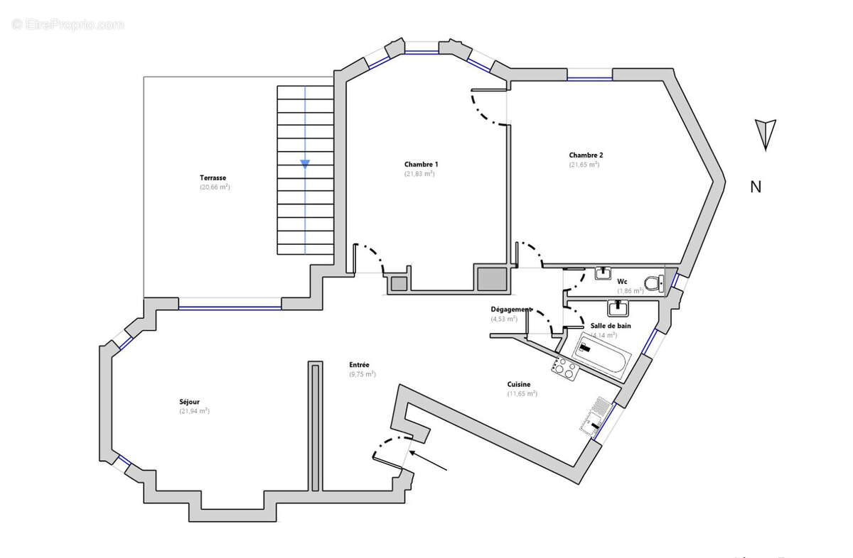
Situé à 5 minutes à pied de la rue Félix Faure et du Vieux Port, au cœur de Cannes, ce bien rare à la vente offre un cadre de vie unique avec deux terrasses en rooftop totalisant 50 m2, une vue spectaculaire sur la mer, le massif de l’Estérel, le Palm Beach et les îles de Lérins, et un potentiel d’aménagement exceptionnel.

Un bien unique sur le marché cannois :

• Appartement traversant de 97,35 m2 habitable (loi Carrez)
• Possibilité d'une 3e chambre dans les combles avec sa propre terrasse
• 2 grandes chambres (20 m2 et 21 m2), toutes deux avec vue mer
• Deux vastes terrasses dont une à l’étage, idéale pour installer une cuisine d’été ou un jacuzzi
• Combles privatifs de 60 m2 au sol, aménageables en suite parentale avec salle de bain en récupérant environ 50cm de hauteur au niveau du sol
• Séjour lumineux avec grande baie vitrée et hauteur sous plafond de 2,80 m
• Cuisine entièrement équipée
• Salle de bain avec baignoire, WC séparés
• Climatisation gainable intégrée


Des prestations évolutives :

• Possibilité d’ouvrir certaines cloisons pour optimiser les volumes
• Dossier de projection 3D disponible sur demande, pour vous aider à vous projeter dans une rénovation sur-mesure
• Grand garage disponible en option, rare et recherché dans ce secteur


Emplacement privilégié :

• À proximité du Vieux Port, des plages, de la Croisette, des commerces et des restaurants
• Adresse centrale tout en bénéficiant du calme et de vues dégagées

Un double rooftop en dernier étage, avec vue mer panoramique et fort potentiel d’optimisation : ce type de bien est exceptionnel à Cannes.


Pour en savoir plus ou organiser une visite, contactez Arnaud [Coordonnées masquées].
Voir plus

Référence: 458
Bien en copropriété. Charges de copropriété : 3443 €.
Honoraires d'agence de 5.29% à la charge de l'acquéreur
Barème des honoraires
DPE
A
B
C
D
E
F
G
GES
A
B
C
D
E
F
G

Prêt immobilier

Vous souhaitez connaître votre capacité d’emprunt et trouver le meilleur crédit immobilier ?
Réaliser une simulation gratuite

Appartement à CANNES
Appartement à CANNES
Appartement à CANNES
Appartement à CANNES
Appartement à CANNES
Appartement à CANNES
Appartement à CANNES
Appartement à CANNES
Appartement à CANNES
Appartement à CANNES
Appartement à CANNES
Appartement à CANNES
Appartement à CANNES
Appartement à CANNES
Ce site est protégé par reCAPTCHA la Politique de confidentialité et les Conditions d’utilisation de Google s’appliquent.
Obtenir un prêt immobilier au meilleur taux ?

En poursuivant votre navigation sans modifier vos paramètres, vous acceptez l'utilisation de cookies susceptibles de réaliser des statistiques de visite. Cliquez ici pour plus d'informations