Bénéficiez des services de nos partenaires locaux soigneusement sélectionnés
pour vous accompagner dans votre parcours d'achat immobilier

Argeles village - villa de 120m2 a achever sur 205 m2 de terrain - secteur route de collioure

— Argeles-Sur-Mer 66700 —
158 000 €
120 m² / 205 m²
4 pièces
parkingbalcon/terrassejardin

Nos partenaires locaux
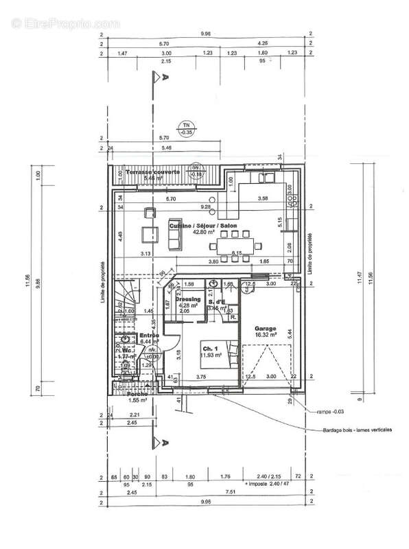
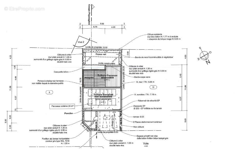
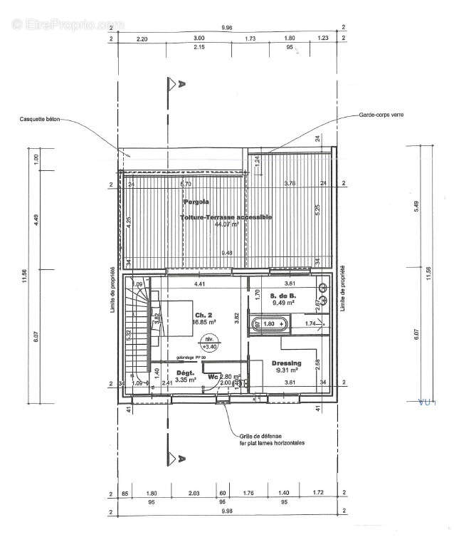
Argeles sur Mer, dans un petit lotissement en impasse,
Sur une parcelle de 205m2, maison de Type 4 Pièces d’environ 120m2 au style contemporain à finir de construire suivant un Permis de Construire délivré et accordé par le service de l’urbanisme.
La parcelle est située très proche du centre-ville, dans un quartier calme et ensoleillé.
Les fondations et l’élévation du vide sanitaire sont déjà réalisés par une entreprise de maçonnerie de renommée.
Les taxes d’assainissement et de raccordement sont prises en charge par le vendeur.
Estimation des travaux restants = 150 000 € environ suivant prestations et finitions
Prévoir 12 300 € de frais d'acte notarié.
Nos bureaux sont en face du centre de lavage Éléphant Bleu de la Zone d'Activité
24, Av des flamants Roses 66700 Argelès sur Mer - [Coordonnées masquées].
Voir plus

Référence: AT1083
Honoraires d'agence de 5.33% à la charge de l'acquéreur
Barème des honoraires

Prêt immobilier

Vous souhaitez connaître votre capacité d’emprunt et trouver le meilleur crédit immobilier ?
Réaliser une simulation gratuite

Maison à ARGELES-SUR-MER
Maison à ARGELES-SUR-MER
Maison à ARGELES-SUR-MER
Maison à ARGELES-SUR-MER
Maison à ARGELES-SUR-MER
Maison à ARGELES-SUR-MER
Maison à ARGELES-SUR-MER
Maison à ARGELES-SUR-MER
Maison à ARGELES-SUR-MER
Ce site est protégé par reCAPTCHA la Politique de confidentialité et les Conditions d’utilisation de Google s’appliquent.
Obtenir un prêt immobilier au meilleur taux ?

En poursuivant votre navigation sans modifier vos paramètres, vous acceptez l'utilisation de cookies susceptibles de réaliser des statistiques de visite. Cliquez ici pour plus d'informations