Bénéficiez des services de nos partenaires locaux soigneusement sélectionnés
pour vous accompagner dans votre parcours d'achat immobilier

Maison mitoyenne avec vue imprenable sur la forêt

— Carros 06510 —
450 000 €
112 m² / 1 500 m²
5 pièces
parkingbalcon/terrasse

Nos partenaires locaux
Située dans un cadre paisible et verdoyant, cette charmante maison mitoyenne de 112m2 est idéale pour une famille en quête de tranquillité et de confort. Nichée dans un environnement naturel, elle offre une superbe vue dégagée sur la forêt.

La maison se compose, au rez-de-chaussée, d'un hall d'entrée, d'une chambre spacieuse, d'une cuisine ouverte sur un salon lumineux donnant accès à une terrasse couverte de plus de 26m2, d'une salle de douche avec toilette et d'un garage aménagé en buanderie de 16m2?
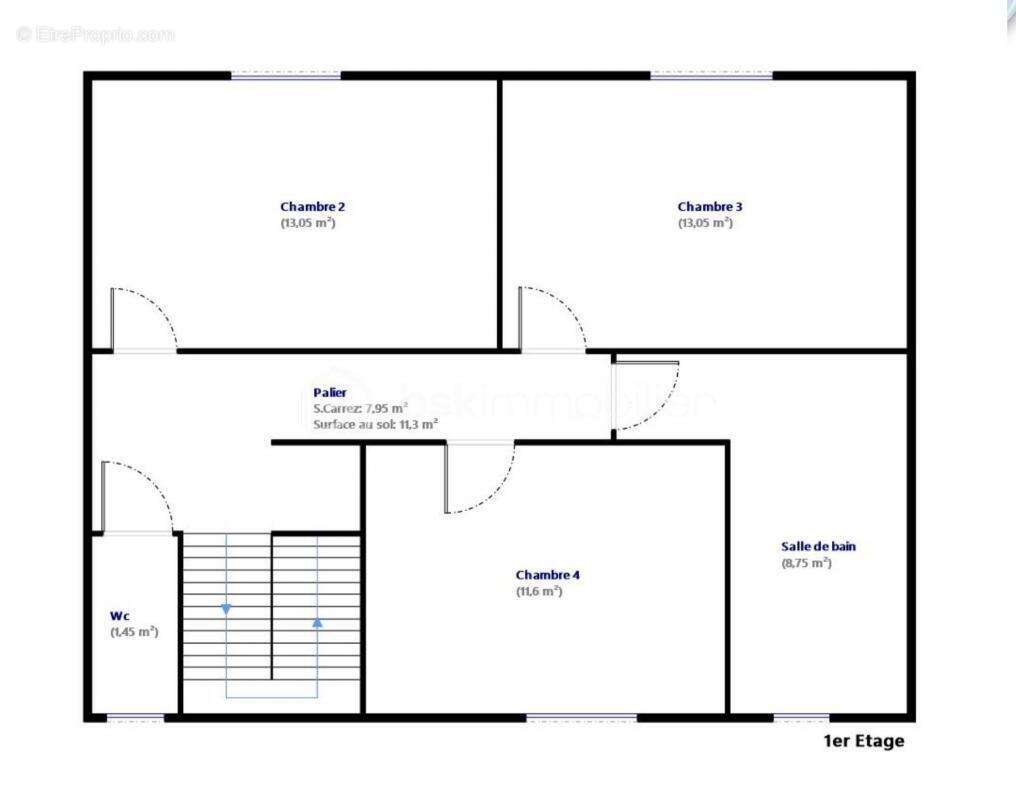
À l'étage, vous trouverez un espace de rangement avec placard, un toilette indépendant, trois chambres de 13 m2 ainsi qu'une grande salle de bain.

À l'extérieur, vous bénéficierez d'un terrain en jouissance d'environ 1500 m², parfait pour profiter de la nature. Deux emplacements de stationnement privatifs complètent ce bien.

Les plus : calme absolu, vue dégagée, fenêtres à galandage, fenêtres et volets en alu, fenêtres dans les chambres équipées de moustiquaires, climatisation réversible dans toutes les pièces...

Ce bien représente une belle opportunité pour une vie de famille sereine, dans un environnement calme, verdoyant et agréable à vivre.

Cette annonce référence 287426 vous est présentée par votre agent commercial BSK Immobilier EMILIE LALEURE (EI) immatriculé au RSAC de NICE (06000) sous le numéro 85389630600018.

Prix du bien : 450 000,00 €
Les honoraires d'agence sont à la charge du vendeur.

A propos des performances énergétiques :
Date de réalisation du diagnostic énergétique : 21/04/2024
Score DPE : 70 kWhEP/m²/an
Score GES : 2 kgepCO2/m²/an
Montant estimé des dépenses annuelles d'énergie pour un usage standard : entre 540.00 € et 790.00 € par an. Prix moyens des énergies indexés sur l'année 2021 (abonnements compris).

Les informations sur les risques auxquels ce bien est exposé sont disponibles sur le site Géorisques : www.georisques.gouv.fr
Voir plus

Référence: 287426
Honoraires à la charge du vendeur.
DPE
A
B
C
D
E
F
G
GES
A
B
C
D
E
F
G

Prêt immobilier

Vous souhaitez connaître votre capacité d’emprunt et trouver le meilleur crédit immobilier ?
Réaliser une simulation gratuite

Maison à CARROS
Maison à CARROS
Maison à CARROS
Maison à CARROS
Maison à CARROS
Maison à CARROS
Maison à CARROS
Maison à CARROS
Maison à CARROS
Maison à CARROS
Maison à CARROS
Maison à CARROS
Maison à CARROS
Maison à CARROS
Maison à CARROS
Maison à CARROS
Maison à CARROS
Maison à CARROS
Maison à CARROS
Ce site est protégé par reCAPTCHA la Politique de confidentialité et les Conditions d’utilisation de Google s’appliquent.
Obtenir un prêt immobilier au meilleur taux ?

En poursuivant votre navigation sans modifier vos paramètres, vous acceptez l'utilisation de cookies susceptibles de réaliser des statistiques de visite. Cliquez ici pour plus d'informations