Appartement genay au dernier étage avec terrasses 4 pièce(s) 86.41m2

— Genay 69730 —
493 000 €
86 m²
4 pièces
balcon/terrasseascenseur

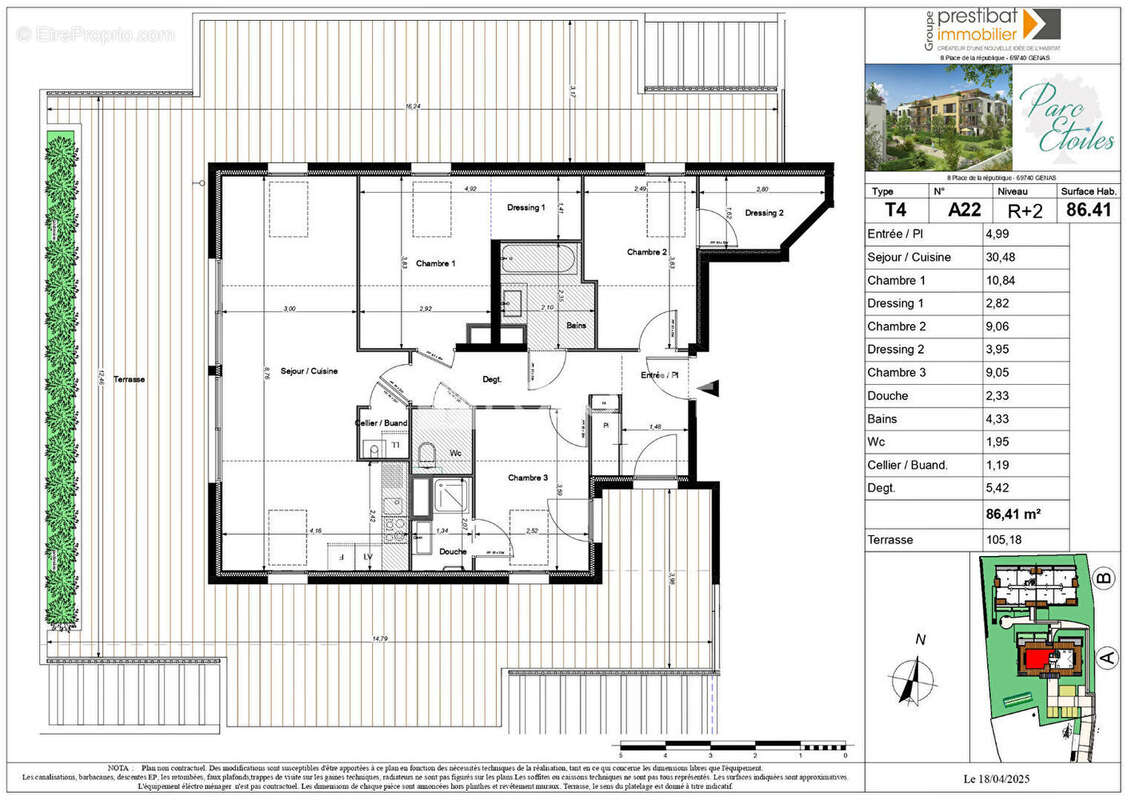
PROGRAMME NEUF AppartementT4 EN VEFA à GENAY Livraison prévue : Été 2026 FRAIS DE NOTAIRE OFFERTS et - 5% DE REDUCTION du 1 déc 2025 au 31 janvier 2026 SUR CE LOT A découvrir dans un nouveau programme immobilier à Genay, ce bel appartement T4 de 86 m² situé au sein d'une résidence moderne et intimiste, au dernier étage comprenant une terrasse entourant l'appartement sur trois expositions , de 105.18 m² Les atouts du bien : belles expositions, séjour traversant avec terrasse Surface habitable : 86 m² et terrasse de 105 m² 3 chambres lumineuses dont une avec douche et 2 avec dressing Cave incluse Résidence neuve aux normes RE2020 Proximité immédiate des commodités : commerces, écoles, transports Ce logement neuf vous offre un cadre de vie agréable dans un secteur calme et recherché de Genay, à seulement quelques minutes de Lyon. Emplacement idéal pour habiter ou investir. Opportunité à saisir en avant-première ! Frais de notaire réduits, garanties constructeur N'hésitez pas à me contacter Stéphanie Clémenceau, tel: [Coordonnées masquées]
Voir plus

Référence: 341
Honoraires à la charge du vendeur.
Barème des honoraires

Prêt immobilier

Vous souhaitez connaître votre capacité d’emprunt et trouver le meilleur crédit immobilier ?
Réaliser une simulation gratuite

Appartement à GENAY
Appartement à GENAY
Appartement à GENAY
Appartement à GENAY
Ce site est protégé par reCAPTCHA la Politique de confidentialité et les Conditions d’utilisation de Google s’appliquent.
Obtenir un prêt immobilier au meilleur taux ?

En poursuivant votre navigation sans modifier vos paramètres, vous acceptez l'utilisation de cookies susceptibles de réaliser des statistiques de visite. Cliquez ici pour plus d'informations