Bénéficiez des services de nos partenaires locaux soigneusement sélectionnés
pour vous accompagner dans votre parcours d'achat immobilier

Appartement 3 chambres - - 3eme et dernier etage - duplex

— Villeparisis 77270 —
395 000 €
121 m²
5 pièces
parkingbalcon/terrasse

Nos partenaires locaux
IDEAL POUR UNE FAMILLE !!
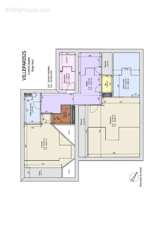
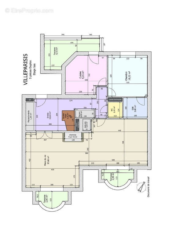
Sublime appartement en duplex, situé au 3ème étage et dernier étage avec beaucoup de charme. Ce bien comprend : Une belle entrée avec 2 grand placards-penderies, un dégagement desservant un séjour-salon avec cheminée donnant sur 2 balcons, une cuisine séparée entièrement équipée et récente donnant sur une petite terrasse à l'arrière, une chambre avec salle de bains, un W.C séparé, un bar. Ce bien est doté d'une bonne isolation phonique.
A l'étage : un dégagement desservant : Une chambre avec placard, une salle d'eau, un W.C, une buanderie, une chambre avec placards donnant accès à une salle de bains privative.
Idéalement situé, ce bien se situe à 10 minutes de la gare de Villeparisis, 15 minutes du centre ville et des écoles.
Un box et un parking sécurisés en surface.
Cathy CAVALERIE : [Coordonnées masquées] AGENCE PARIS EST 6 PLACE F MAURIAC BOIS PARISIS 77270 VILLEPARISIS
La présente annonce immobilière vise 1 lot principal situés dans une copropriété formant 35 lots au total (dont 13 lots principaux), et faisant l'objet d'aucunes procédures en cours. Montant de charges d’environ 352.66€ par mois (soit 4232€ annuel) déclaré par le vendeur. Honoraires d’agence à la charge du vendeur. Information d'affichage énergétique sur ce bien : DPE D - GES B. Retrouvez tous nos biens sur notre site internet. www.agence-paris-est.com.
Les informations sur les risques auxquels ce bien est exposé son disponibles sur le site géorisques : www.georisques.gouv.fr.
Voir plus

Référence: 1070
Bien en copropriété. Nombre de lots : 35. Charges de copropriété : 3800 €.
Honoraires à la charge du vendeur.
Barème des honoraires
DPE
A
B
C
D
E
F
G
GES
A
B
C
D
E
F
G

Prêt immobilier

Vous souhaitez connaître votre capacité d’emprunt et trouver le meilleur crédit immobilier ?
Réaliser une simulation gratuite

Appartement à VILLEPARISIS
Appartement à VILLEPARISIS
Appartement à VILLEPARISIS
Appartement à VILLEPARISIS
Appartement à VILLEPARISIS
Appartement à VILLEPARISIS
Appartement à VILLEPARISIS
Appartement à VILLEPARISIS
Appartement à VILLEPARISIS
Appartement à VILLEPARISIS
Appartement à VILLEPARISIS
Appartement à VILLEPARISIS
Appartement à VILLEPARISIS
Appartement à VILLEPARISIS
Appartement à VILLEPARISIS
Appartement à VILLEPARISIS
Appartement à VILLEPARISIS
Appartement à VILLEPARISIS
Appartement à VILLEPARISIS
Appartement à VILLEPARISIS
Appartement à VILLEPARISIS
Appartement à VILLEPARISIS
Appartement à VILLEPARISIS
Ce site est protégé par reCAPTCHA la Politique de confidentialité et les Conditions d’utilisation de Google s’appliquent.
Obtenir un prêt immobilier au meilleur taux ?

En poursuivant votre navigation sans modifier vos paramètres, vous acceptez l'utilisation de cookies susceptibles de réaliser des statistiques de visite. Cliquez ici pour plus d'informations