Bénéficiez des services de nos partenaires locaux soigneusement sélectionnés
pour vous accompagner dans votre parcours d'achat immobilier

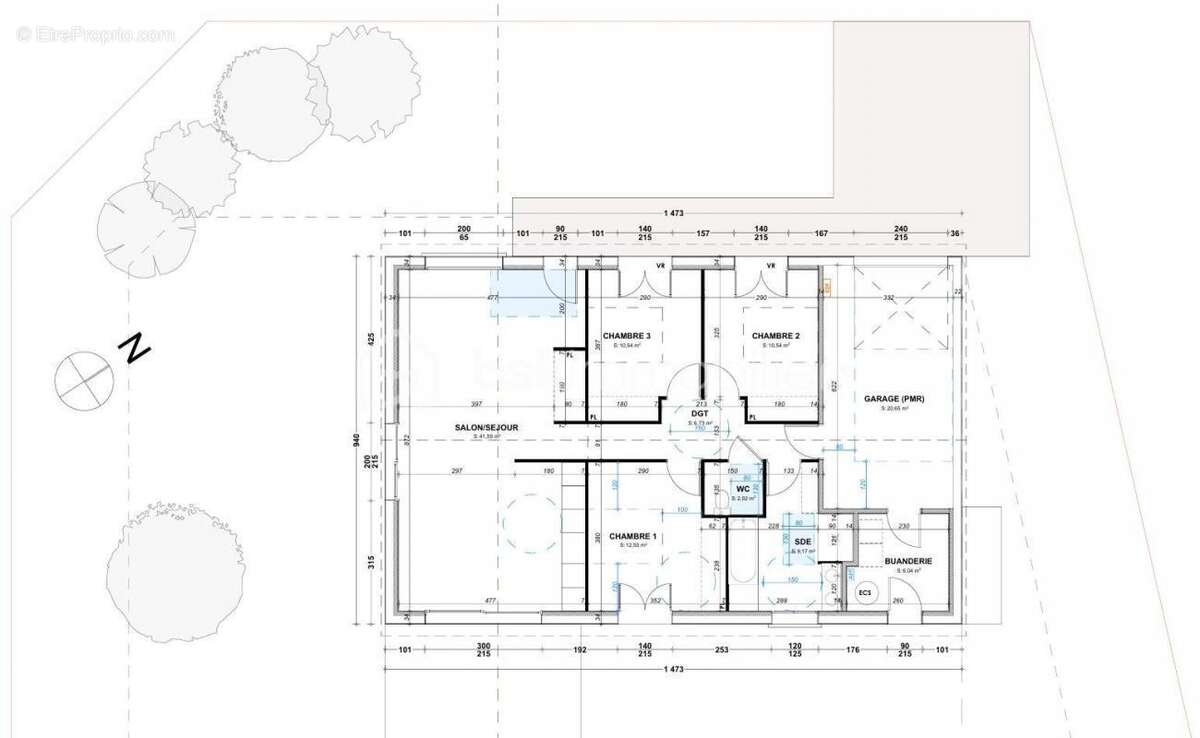
Maison neuve de plain-pied 120m2

— Couzeix 87270 —
258 000 €
120 m² / 701 m²
5 pièces
parkingbalcon/terrasse

Nos partenaires locaux
Découvrez cette splendide maison neuve de 120m2 , construite en 2024, offrant un cadre de vie agréable et contemporain. Située dans un secteur paisible et facilement accessible, cette propriété est parfaite pour ceux cherchant un confort moderne sans compromis.

Avec ses 99 m² habitables et 5 pièces lumineuses, cette maison aux normes PMR conçue sur un seul niveau propose un aménagement bien pensé, idéal pour une famille. L'intérieur est optimisé pour le confort avec une cuisine ouverte, un salon spacieux et un accès direct à une terrasse privée, parfait pour vos moments de détente.

Toutes les pièces sont carrelées et équipées de la climatisation réversible et d'une domotique somfy pilotée par smartphone.
Une belle salle de bain équipée d'une douche avec paroi coulissante, d'une baignoire ainsi qu'un meuble double vasque et un sèche serviette.
Le garage de 21m2 est carrelé et isolé, donnant sur le cellier .

À l'extérieur, profitez de votre jardin en partie clôturé avec sa terrasse de 20m2, l'espace extérieur est à la fois pratique et accueillant.

Choisissez la sérénité dans une maison sans copropriété et sans procédures assumées, combinant modernité et simplicité. Un bien rare à saisir pour vivre agréablement à proximité des commodités essentielles avec
écoles, commerces et services accessibles en quelques minutes.

Frais de notaire réduits!!

Opportunité rare à ne pas manquer ! Pour plus d'informations, veuillez contacter Jonathan Colpart.

Cette annonce référence 286630 vous est présentée par votre agent commercial BSK Immobilier JONATHAN COLPART (EI) immatriculé au RSAC de LIMOGES (87000) sous le numéro 92899653700017.

Prix du bien : 258 000,00 €
Les honoraires d'agence sont à la charge du vendeur.

Non soumis au DPE.

Les informations sur les risques auxquels ce bien est exposé sont disponibles sur le site Géorisques : www.georisques.gouv.fr
Voir plus

Référence: 286630
Honoraires à la charge du vendeur.

Prêt immobilier

Vous souhaitez connaître votre capacité d’emprunt et trouver le meilleur crédit immobilier ?
Réaliser une simulation gratuite

Maison à COUZEIX
Maison à COUZEIX
Maison à COUZEIX
Maison à COUZEIX
Maison à COUZEIX
Maison à COUZEIX
Maison à COUZEIX
Maison à COUZEIX
Maison à COUZEIX
Maison à COUZEIX
Maison à COUZEIX
Maison à COUZEIX
Maison à COUZEIX
Maison à COUZEIX
Maison à COUZEIX
Maison à COUZEIX
Ce site est protégé par reCAPTCHA la Politique de confidentialité et les Conditions d’utilisation de Google s’appliquent.
Obtenir un prêt immobilier au meilleur taux ?

En poursuivant votre navigation sans modifier vos paramètres, vous acceptez l'utilisation de cookies susceptibles de réaliser des statistiques de visite. Cliquez ici pour plus d'informations