Bénéficiez des services de nos partenaires locaux soigneusement sélectionnés
pour vous accompagner dans votre parcours d'achat immobilier

Exclusivité a vendre brest siam eglise saint-louis appartement t5 duplex 143,44 m² petit garage

— Brest 29200 —
378 800 €
143 m²
5 pièces
parking

Nos partenaires locaux
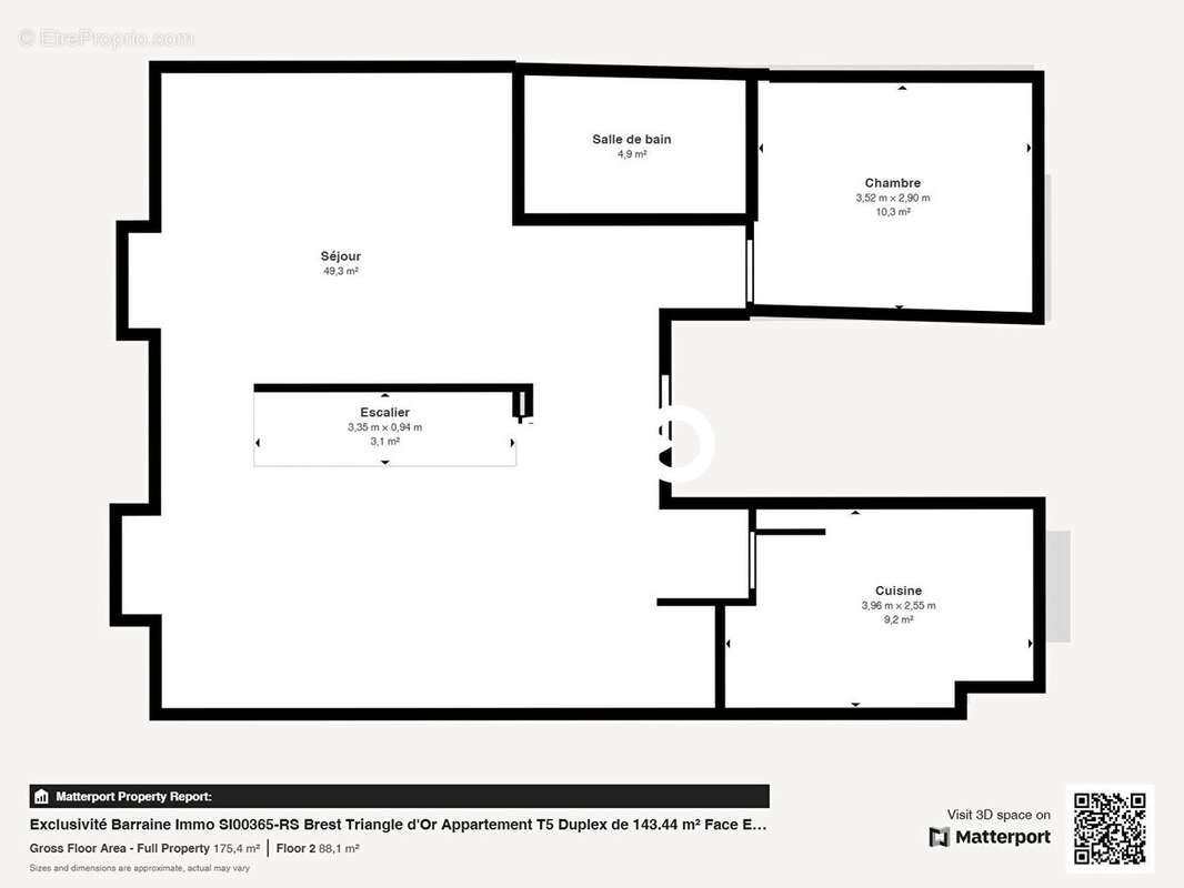
EXCLUSIVITÉ - SIAM - SAINT-LOUIS SI00365-RS-1 Venez découvrir cet appartement T5 en duplex de 143.44 m² situé dans une résidence bien tenue des années 1950 en plein coeur du Triangle d'Or, à proximité de la Rue de Siam. Développant 143,44m² habitables, il se compose d'une entrée sur parquet massif donnant sur deux pièces pouvant être réunies et former un ensemble pièce de vie de 34m², une cuisine de 8,5m² donnant sur cour ainsi qu'une chambre de 14m². WC indépendant. Au niveau supérieur, vous trouverez 4 pièces supplémentaires, allant de 9 à 17,5m², un placard, WC avec lave-mains et un large dégagement. Pour votre véhicule ou/et du stockage, vous pourrez également profiter d'un petit garage dans la cour de l'immeuble ainsi que de deux caves au sous-sol de 13 et 18 m². Cet ensemble nécessitera d'être refait et pourra également être divisé en 2 logements indépendants. Le système de chauffage est individuel au fioul et les fenêtres sont en PVC double vitrage. Les indices DPE et GES sont respectivement de catégorie E (191 kWh/m² annuels) et de classe E (50Kg CO2/m²/an). N'hésitez pas à prendre contact avec votre Agence Barraine IMMO Brest - Siam pour une première visite de cet appartement à vendre. (5.22 % honoraires TTC à la charge de l'acquéreur.) Copropriété de 12 lots - dont 3 lots habitation. (Pas de procédure en cours). Charges annuelles : 1751.2 euros.
Voir plus

Référence: SI00365-RS-1
Bien en copropriété. Nombre de lots : 12. Charges de copropriété : 1751 €.
Honoraires d'agence de 5.22% à la charge de l'acquéreur
Barème des honoraires
DPE
A
B
C
D
E
F
G
GES
A
B
C
D
E
F
G

Prêt immobilier

Vous souhaitez connaître votre capacité d’emprunt et trouver le meilleur crédit immobilier ?
Réaliser une simulation gratuite

Appartement à BREST
Appartement à BREST
Appartement à BREST
Appartement à BREST
Appartement à BREST
Appartement à BREST
Appartement à BREST
Appartement à BREST
Appartement à BREST
Appartement à BREST
Appartement à BREST
Appartement à BREST
Appartement à BREST
Appartement à BREST
Appartement à BREST
Appartement à BREST
Appartement à BREST
Appartement à BREST
Appartement à BREST
Ce site est protégé par reCAPTCHA la Politique de confidentialité et les Conditions d’utilisation de Google s’appliquent.
Obtenir un prêt immobilier au meilleur taux ?

En poursuivant votre navigation sans modifier vos paramètres, vous acceptez l'utilisation de cookies susceptibles de réaliser des statistiques de visite. Cliquez ici pour plus d'informations