Bénéficiez des services de nos partenaires locaux soigneusement sélectionnés
pour vous accompagner dans votre parcours d'achat immobilier

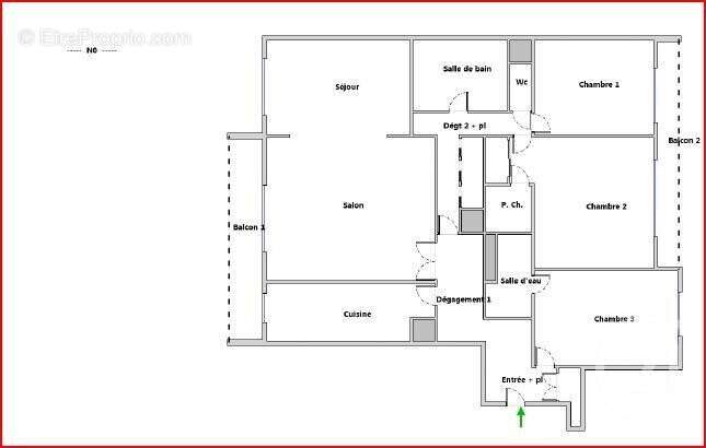
Appartement 102m² à paris-12e

— Paris-12e 75012 —
995 000 €
103 m²
5 pièces
balcon/terrasseascenseur

Nos partenaires locaux
Century 21 Nation : Situé Boulevard de Reuilly, au 3e étage d'un immeuble avec ascenseur, dans le cœur de Paris 12e, cet appartement de 5 pièces offre une surface habitable de 102.50 m². Avec trois chambres, dont une de 15 m², il est idéal pour une famille ou pour ceux qui cherchent un espace généreux. La disposition des pièces permet une grande flexibilité, avec notamment la possibilité d'ouvrir la cuisine sur le double séjour, ainsi que la récupération de l'entrée et du couloir pour créer un espace de vie encore plus spacieux.L'appartement bénéficie d'une double exposition sud-nord, offrant une luminosité naturelle abondante tout au long de la journée. Deux balcons, dont l'un donne sur une cour au calme, permettent de profiter de l'air frais et du soleil. La présence d'une salle de bains, d'une salle d'eau et d'un WC répond aux besoins de tous les occupants. Un parking de 12 m² et une cave de 5 m² complètent les avantages de ce bien. Fort potentielle, à deux pas du métro Dausmenil et Bel Air.
Voir plus

Référence: 27931
Barème des honoraires
DPE
A
B
C
D
E
F
G
GES
A
B
C
D
E
F
G

Prêt immobilier

Vous souhaitez connaître votre capacité d’emprunt et trouver le meilleur crédit immobilier ?
Réaliser une simulation gratuite

Appartement à PARIS-12E
Appartement à PARIS-12E
Appartement à PARIS-12E
Appartement à PARIS-12E
Appartement à PARIS-12E
Appartement à PARIS-12E
Appartement à PARIS-12E
Appartement à PARIS-12E
Appartement à PARIS-12E
Appartement à PARIS-12E
Appartement à PARIS-12E
Appartement à PARIS-12E
Appartement à PARIS-12E
Appartement à PARIS-12E
Appartement à PARIS-12E
Appartement à PARIS-12E
Appartement à PARIS-12E
Appartement à PARIS-12E
Appartement à PARIS-12E
Appartement à PARIS-12E
Ce site est protégé par reCAPTCHA la Politique de confidentialité et les Conditions d’utilisation de Google s’appliquent.
Obtenir un prêt immobilier au meilleur taux ?

En poursuivant votre navigation sans modifier vos paramètres, vous acceptez l'utilisation de cookies susceptibles de réaliser des statistiques de visite. Cliquez ici pour plus d'informations