Bénéficiez des services de nos partenaires locaux soigneusement sélectionnés
pour vous accompagner dans votre parcours d'achat immobilier

Commerce 123m² à cannes

— Cannes 06400 —
1 600 000 €
123 m²

Nos partenaires locaux
REALPOINT IMMOBILIER vous propose en co-exclusivité des murs commerciaux idéalement situés sur le prestigieux Boulevard de la Croisette, à Cannes.
Locaux vendus libres de toute occupation
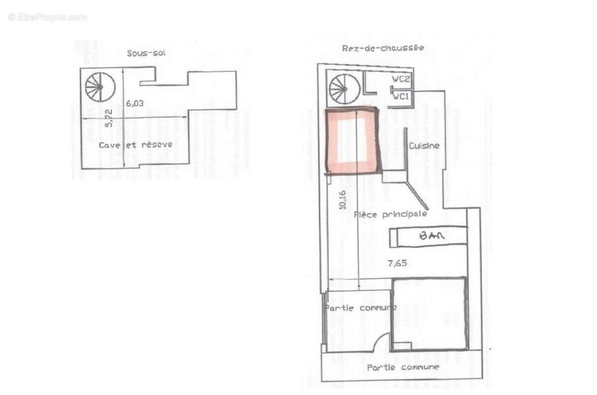
Surface totale : 122,90 m²
Rez-de-chaussée : 87,15 m²
Sous-sol : 35,75 m²
Caractéristiques du bien :
Deux accès sur rue
Locaux en excellent état
Éclairage LED
Climatisation réversible
Chauffage collectif
Coin cuisine
Emplacement de premier ordre, bénéficiant :
D'une excellente visibilité
D'un fort passage piéton et automobile
D'un environnement en pleine valorisation, dans le cadre du vaste programme de réaménagement et d'embellissement de la Croisette
Contactez-nous dès aujourd'hui pour plus d'informations.
Nous mettons un point d'honneur à vous répondre rapidement !

Honoraires inclus de 6.67% à la charge de l'acquéreur. Prix hors honoraires 1 500 000 €. Dans une copropriété de 5 lots. Aucune procédure n'est en cours. Non soumis au DPE. Les informations sur les risques auxquels ce bien est exposé sont disponibles sur le site Géorisques : georisques.gouv.fr.
Voir plus

Référence: 250502-REALPOINT
Bien en copropriété. Nombre de lots : 5.
Honoraires d'agence de 6.67% à la charge de l'acquéreur

Prêt immobilier

Vous souhaitez connaître votre capacité d’emprunt et trouver le meilleur crédit immobilier ?
Réaliser une simulation gratuite

Commerce à CANNES
Commerce à CANNES
Commerce à CANNES
Commerce à CANNES
Commerce à CANNES
Commerce à CANNES
Commerce à CANNES
Commerce à CANNES
Commerce à CANNES
Ce site est protégé par reCAPTCHA la Politique de confidentialité et les Conditions d’utilisation de Google s’appliquent.
Obtenir un prêt immobilier au meilleur taux ?

En poursuivant votre navigation sans modifier vos paramètres, vous acceptez l'utilisation de cookies susceptibles de réaliser des statistiques de visite. Cliquez ici pour plus d'informations