Sous compromis // local commercial // 100m2 // 1 accueil // 5 bureaux // 2 wc // hagondange

— Hagondange 57300 —
169 000 €
100 m²
5 pièces

SOUS COMPROMIS

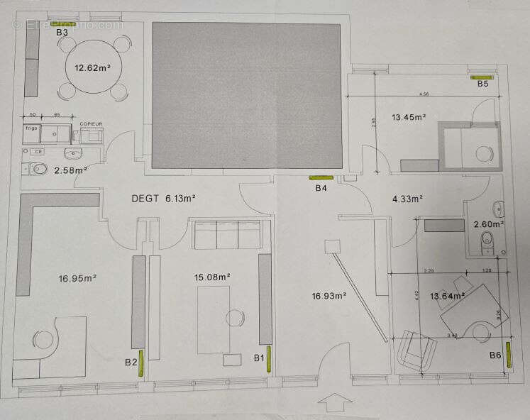
Venez découvrir ce local commercial idéalement situé, proche de toutes les commodités aux multiples possibilités avec ses 2 entrées et ses 2 parties pouvant être fermées indépendamment.
L’accueil de 17m2 dessert :
- A droite : un hall, 2 bureaux de plus de 13m2 chacun dont un avec un petit studio d’enregistrement et 1 WC avec lave-mains ;
- A gauche : un hall donne accès à un premier bureau de 15m2, un bureau de 17m2 avec son entrée indépendante et de nombreux placards, une kitchenette de 12.50m2 (ou autre bureau) et un WC avec lave-mains.
Places de stationnement compris
Tout électrique avec ballon d'eau chaude récent
Contactez-moi pour plus d’informations
Au plaisir
Sandra et son assistante Maya

Les informations sur les risques auxquels ce bien est exposé sont disponibles sur le site Géorisques : www.georisques.gouv.fr
Voir plus

Référence: 60
Bien en copropriété. Nombre de lots : 1.
Honoraires à la charge du vendeur.
Barème des honoraires
DPE
A
B
C
D
E
F
G
GES
A
B
C
D
E
F
G

Prêt immobilier

Vous souhaitez connaître votre capacité d’emprunt et trouver le meilleur crédit immobilier ?
Réaliser une simulation gratuite

Autre à HAGONDANGE
Autre à HAGONDANGE
Autre à HAGONDANGE
Autre à HAGONDANGE
Autre à HAGONDANGE
Autre à HAGONDANGE
Autre à HAGONDANGE
Autre à HAGONDANGE
Autre à HAGONDANGE
Autre à HAGONDANGE
Autre à HAGONDANGE
Autre à HAGONDANGE
Autre à HAGONDANGE
Autre à HAGONDANGE
Autre à HAGONDANGE
Autre à HAGONDANGE
Autre à HAGONDANGE
Autre à HAGONDANGE
Ce site est protégé par reCAPTCHA la Politique de confidentialité et les Conditions d’utilisation de Google s’appliquent.
Obtenir un prêt immobilier au meilleur taux ?

En poursuivant votre navigation sans modifier vos paramètres, vous acceptez l'utilisation de cookies susceptibles de réaliser des statistiques de visite. Cliquez ici pour plus d'informations