Bénéficiez des services de nos partenaires locaux soigneusement sélectionnés
pour vous accompagner dans votre parcours d'achat immobilier

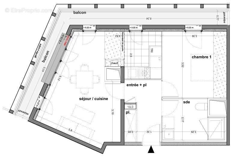
Appartement 50m² à merignac

— Merignac 33700 —
250 000 €
50 m²
2 pièces
parkingbalcon/terrasseascenseuraccès handicapé

Nos partenaires locaux
EXPOSÉ SUD-OUEST A DEUX PAS DU TRAM

Situé à Mérignac au coeur d'une résidence contemporaine et verdoyante, proche des commerces et transports, ce bel appartement 2 pièces de près de 50 m² offre un cadre de vie agréable, baigné de lumière. Nichée dans un écrin de verdure, la résidence bénéficie d'un environnement paysager soigné et d'aménagements de qualité, à quelques pas seulement des commerces de proximité, des établissements scolaires et des transports en commun (tram A et lignes de bus), facilitant les déplacements au quotidien.

Vous y trouverez un grand séjour de 25m2, orienté plein sud, où vous profiterez d'un ensoleillement généraux tout au long de la journée.
À travers de larges ouvertures, il se prolonge naturellement vers une terrasse de près de 11 m², également accessible depuis la chambre. Un espace idéal pour vos petits-déjeuners au soleil ou vos soirées d'été.
Une chambre intime, une salle d'eau moderne avec WC et une entrée astucieusement aménagée avec rangements complètent ce bien fonctionnel et bien pensé.

Un appartement idéal pour un pied-à-terre au coeur d'un cadre paisible et verdoyant, où confort moderne et douceur de vivre se rencontrent au quotidien.

Une place de parking sécurisée complète ce bien en sus obligatoire (10 000€).

- Aucun travaux à prévoir
- Ascenseur
- Frais de Notaires Réduits
- Garanties
- RT 2012
- Disponible
- ...

EXPOSÉ SUD-OUEST A DEUX PAS DU TRAM



Honoraires à la charge du vendeur. Dans une copropriété de 25 lots. Aucune procédure n'est en cours. DPE en cours. Les informations sur les risques auxquels ce bien est exposé sont disponibles sur le site Géorisques : georisques.gouv.fr.

Votre conseiller RH Patrimoine : Maxime HERVE
Agent commercial (Entreprise individuelle)
RSAC 133095555 J
RCP 13309666 J
Voir plus

Référence: VA3032-RHPATRI
Bien en copropriété. Nombre de lots : 25.
Honoraires à la charge du vendeur.
Barème des honoraires

Prêt immobilier

Vous souhaitez connaître votre capacité d’emprunt et trouver le meilleur crédit immobilier ?
Réaliser une simulation gratuite

Appartement à MERIGNAC
Appartement à MERIGNAC
Appartement à MERIGNAC
Appartement à MERIGNAC
Appartement à MERIGNAC
Ce site est protégé par reCAPTCHA la Politique de confidentialité et les Conditions d’utilisation de Google s’appliquent.
Obtenir un prêt immobilier au meilleur taux ?

En poursuivant votre navigation sans modifier vos paramètres, vous acceptez l'utilisation de cookies susceptibles de réaliser des statistiques de visite. Cliquez ici pour plus d'informations