Bénéficiez des services de nos partenaires locaux soigneusement sélectionnés
pour vous accompagner dans votre parcours d'achat immobilier

Appartement 70m² à merignac

— Merignac 33700 —
290 000 €
70 m²
3 pièces
parkingbalcon/terrasseascenseuraccès handicapé

Nos partenaires locaux
VOTRE COCON VERDOYANT A DEUX PAS DU TRAM

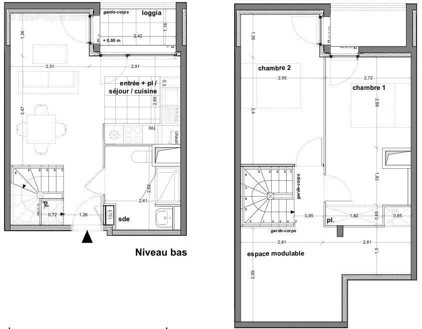
À Mérignac, dans un cadre résidentiel alliant modernité et nature, ce ravissant duplex de 3 pièces d'environ 70 m² offre des espaces bien agencés et une ambiance chaleureuse. Au sein d'une résidence contemporaine soigneusement paysagée, il bénéficie d'un environnement verdoyant et de prestations de qualité. Sa situation idéale, à proximité immédiate des commerces, des écoles et des transports en commun (tram A et lignes de bus), facilite la vie quotidienne et les déplacements.

Au premier niveau, une agréable pièce de vie avec cuisine ouverte offre un espace convivial, parfaitement prolongé par une loggia intimiste, idéale pour savourer un café matinal ou une pause au calme. Une salle d'eau moderne avec WC complète ce niveau.
À l'étage, deux chambres confortables offrent un véritable cocon de repos. Un vaste espace modulable de plus de 15 m² vient enrichir le tout, à aménager selon vos envies : bureau, dressing sur mesure ou salle de jeux... à vous d'imaginer votre cadre de vie idéal.

Un bien moderne, fonctionnel et évolutif, pensé pour répondre aux besoins d'aujourd'hui et aux envies de demain.

Deux places de parking sécurisées complètent ce bien en sus (15 000€).

- Aucun travaux à prévoir
- Ascenseur
- Frais de Notaires Réduits
- Garanties
- RT 2012
- Disponible
- ...

VOTRE COCON VERDOYANT A DEUX PAS DU TRAM

Honoraires à la charge du vendeur. Dans une copropriété de 47 lots. Aucune procédure n'est en cours. DPE en cours. Les informations sur les risques auxquels ce bien est exposé sont disponibles sur le site Géorisques : georisques.gouv.fr.

Votre conseiller RH Patrimoine : Maxime HERVE
Agent commercial (Entreprise individuelle)
RSAC 133095555 J
RCP 13309666 J
Voir plus

Référence: VA3036-RHPATRI
Bien en copropriété. Nombre de lots : 47.
Honoraires à la charge du vendeur.
Barème des honoraires

Prêt immobilier

Vous souhaitez connaître votre capacité d’emprunt et trouver le meilleur crédit immobilier ?
Réaliser une simulation gratuite

Appartement à MERIGNAC
Appartement à MERIGNAC
Appartement à MERIGNAC
Appartement à MERIGNAC
Appartement à MERIGNAC
Appartement à MERIGNAC
Appartement à MERIGNAC
Ce site est protégé par reCAPTCHA la Politique de confidentialité et les Conditions d’utilisation de Google s’appliquent.
Obtenir un prêt immobilier au meilleur taux ?

En poursuivant votre navigation sans modifier vos paramètres, vous acceptez l'utilisation de cookies susceptibles de réaliser des statistiques de visite. Cliquez ici pour plus d'informations