Bénéficiez des services de nos partenaires locaux soigneusement sélectionnés
pour vous accompagner dans votre parcours d'achat immobilier

Voir tous les partenaires locaux

Vente appartement bureau paris 75007 sevres-babylone

— Paris-7e 75007 —
3 727 500 €
190 m²
6 pièces
balcon/terrasseascenseur

Nos partenaires locaux
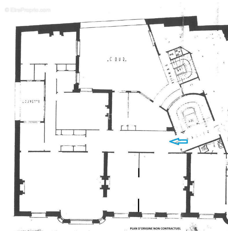
Paris VII, Sèvres-Babylone Rue Juliette Récamier, dans un bel immeuble ancien avec ascenseur et gardienne à demeure, appartement de 6 pièces de 178 m², à usage d'habitation ou professionnel. Actuellement aménagé en bureaux, ce bien se compose d'une entrée, de deux salons, d'une salle à manger, de trois pièces pouvant servir de chambres, d'une cuisine, d'un office, d'une salle de bains et de toilettes séparées. Des travaux de rénovation sont à prévoir afin de révéler tout le potentiel de cet appartement, situé dans l'un des quartiers les plus prisés de la Rive Gauche, à proximité immédiate du Bon Marché et du métro Sèvres-Babylone. Une chambre de service de 13 m² au 7ème étage ainsi que deux caves complètent ce bien. Copropriété de 49 lots - dont 46 lots habitation. (Pas de procédure en cours). Charges annuelles : 12000 euros.
Voir plus

Bien en copropriété. Nombre de lots : 49. Charges de copropriété : 12000 €.
Honoraires d'agence de 5% à la charge de l'acquéreur
Barème des honoraires
DPE
A
B
C
D
E
F
G
GES
A
B
C
D
E
F
G

Prêt immobilier

Vous souhaitez connaître votre capacité d’emprunt et trouver le meilleur crédit immobilier ?
Réaliser une simulation gratuite

Appartement à PARIS-7E
Appartement à PARIS-7E
Appartement à PARIS-7E
Appartement à PARIS-7E
Appartement à PARIS-7E
Appartement à PARIS-7E
Appartement à PARIS-7E
Appartement à PARIS-7E
Appartement à PARIS-7E
Appartement à PARIS-7E
Appartement à PARIS-7E
Appartement à PARIS-7E
Appartement à PARIS-7E
Appartement à PARIS-7E
Appartement à PARIS-7E
Appartement à PARIS-7E
Appartement à PARIS-7E
Appartement à PARIS-7E
Ce site est protégé par reCAPTCHA la Politique de confidentialité et les Conditions d’utilisation de Google s’appliquent.
Obtenir un prêt immobilier au meilleur taux ?

En poursuivant votre navigation sans modifier vos paramètres, vous acceptez l'utilisation de cookies susceptibles de réaliser des statistiques de visite. Cliquez ici pour plus d'informations