Bénéficiez des services de nos partenaires locaux soigneusement sélectionnés
pour vous accompagner dans votre parcours d'achat immobilier

Maison/appartement hardricourt 6 pièces, 4 chambres 131 m2

— Hardricourt 78250 —
344 000 €
131 m² / 558 m²
6 pièces
parkingjardin

Nos partenaires locaux
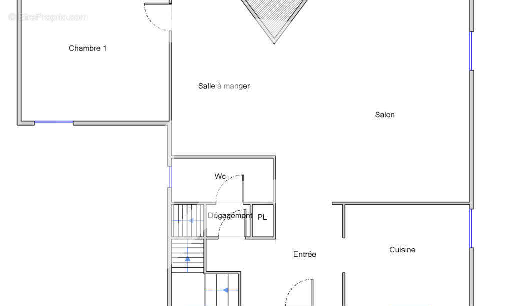
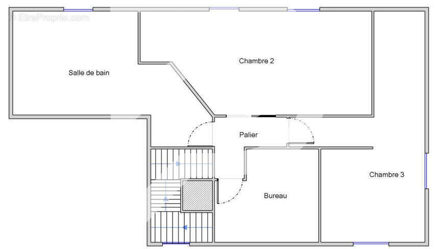
L'agence Stéphane Plaza Immobilier vous présente cette charmante maison en pierre offrant un cadre de vie calme et verdoyant. Vous serez accueillis au rez de chaussée par une vaste et belle entrée desservant une cuisine semi ouverte aménagée et équipée , un salon et une salle à manger très lumineux, une chambre avec sa salle d'eau et un WC. Au premier étage le palier dessert le coin nuit avec 3 chambres ainsi qu'une salle de bains spacieuse avec WC. Un beau jardin sans vis à vis complète ce bien, ainsi qu'une buanderie et un atelier. Vous serez à moins de 10 minutes à pied de la gare et des commerces . Les + de cette maison : - Performance énergétique C - Gaz à effet de serre A - Climatisation réversible - Jardin de 570m2 - Buanderie et atelier - Environnement calme et verdoyant VISITE VIRTUELLE DISPONIBLE
Voir plus

Référence: 169
Honoraires à la charge du vendeur.
Barème des honoraires
DPE
A
B
C
D
E
F
G
GES
A
B
C
D
E
F
G

Prêt immobilier

Vous souhaitez connaître votre capacité d’emprunt et trouver le meilleur crédit immobilier ?
Réaliser une simulation gratuite

Maison à HARDRICOURT
Maison à HARDRICOURT
Maison à HARDRICOURT
Maison à HARDRICOURT
Maison à HARDRICOURT
Maison à HARDRICOURT
Maison à HARDRICOURT
Maison à HARDRICOURT
Maison à HARDRICOURT
Maison à HARDRICOURT
Maison à HARDRICOURT
Maison à HARDRICOURT
Maison à HARDRICOURT
Maison à HARDRICOURT
Ce site est protégé par reCAPTCHA la Politique de confidentialité et les Conditions d’utilisation de Google s’appliquent.
Obtenir un prêt immobilier au meilleur taux ?

En poursuivant votre navigation sans modifier vos paramètres, vous acceptez l'utilisation de cookies susceptibles de réaliser des statistiques de visite. Cliquez ici pour plus d'informations