Maison t4 (144m²) + t2 (42m²) + garage (45m²) sur 2159m² constructible i rougiers

— Rougiers 83170 —
499 000 €
186 m² / 2 159 m²
6 pièces
parkingbalcon/terrasse

En exclusivité et uniquement chez Liberkeys, dans secteur pavillonnaire à l'est de Rougiers, une grande maison composée de 2 parties distinctes sur un terrain de 2159m² essentiellement sur l'arrière de la propriété.

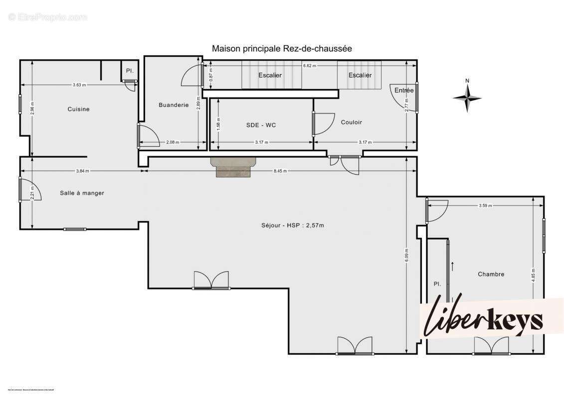
- La partie principale en R+1 se compose au rdc, d'une entrée desservant une salle d'eau avec wc, l'escalier pour le 1er étage et l'accès à la lumineuse pièce de vie avec cuisine ouverte ~60m² exposée Sud le tout donnant une grande terrasse en L avec pergola bioclimatique.
Depuis la pièce de vie climatisée, on accède à une chambre climatisée ~17m² avec placards et accès à l'extérieur.
Depuis la cuisine, on accède à une arrière cuisine/buanderie avec un escalier desservant le garage ~45m² et les caves.
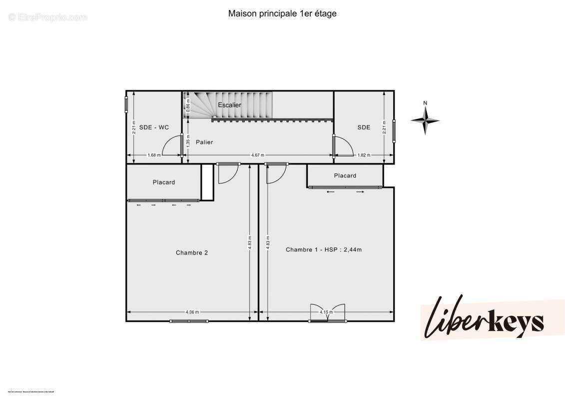
Au 1er étage, 2 belles chambres avec placards ~19m² dont une avec terrasse couverte et 2 salle d'eau dont une avec wc.
Cette partie demande des travaux.

- La deuxième partie est un espace aménagé en T2 avec terrasse situé à l'étage avec accès indépendant composée d'une pièce de vie avec cuisine ouverte ~23m² exposée Ouest, puis une salle d'eau, une chambre de 9,5m² et un wc indépendant.
Cette partie qui peut être rattachée à la partie principale demande de gros rafraîchissements.

Le terrain plat est encore constructible et possiblement détachable (~ 900m²).
La maison est éligible à la fibre et équipée de panneaux solaires.
Taxe foncière 2024: 2481€.

****Ce bien vous plaît ? Contactez directement votre conseiller Delacour Barthélémy, agent commercial immatriculé au RSAC de Marseille sous le numéro 912 578 259.
Voir plus

Référence: DOM8184
Honoraires à la charge du vendeur.
DPE
A
B
C
D
E
F
G
GES
A
B
C
D
E
F
G

Prêt immobilier

Vous souhaitez connaître votre capacité d’emprunt et trouver le meilleur crédit immobilier ?
Réaliser une simulation gratuite

Maison à ROUGIERS
Maison à ROUGIERS
Maison à ROUGIERS
Maison à ROUGIERS
Maison à ROUGIERS
Maison à ROUGIERS
Maison à ROUGIERS
Maison à ROUGIERS
Maison à ROUGIERS
Maison à ROUGIERS
Maison à ROUGIERS
Maison à ROUGIERS
Maison à ROUGIERS
Ce site est protégé par reCAPTCHA la Politique de confidentialité et les Conditions d’utilisation de Google s’appliquent.
Obtenir un prêt immobilier au meilleur taux ?

En poursuivant votre navigation sans modifier vos paramètres, vous acceptez l'utilisation de cookies susceptibles de réaliser des statistiques de visite. Cliquez ici pour plus d'informations