Bénéficiez des services de nos partenaires locaux soigneusement sélectionnés
pour vous accompagner dans votre parcours d'achat immobilier

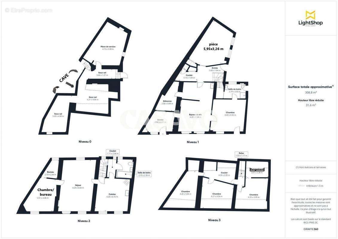
Vente maison 6 pièces de 220m² - 77181 courtry

— Courtry 77181 —
355 000 €
220 m² / 200 m²
6 pièces
jardin

Nos partenaires locaux
Casavo vous propose à la vente, en plein cœur de Courtry, une maison de ville pleine de caractère, rare sur le marché. Édifiée en 1890, cette demeure en pierre et chargée d'histoire a tour à tour abrité un café de village et il y a quelques années, un cabinet médical. Aujourd'hui soigneusement rénovée, elle offre un subtil équilibre entre authenticité, volumes généreux et modernité.

Son architecture, sa rénovation avec goût et les matériaux de qualité en font une maison à part, où chaque pièce est bien pensée. Double vitrage, isolation intérieure, pompe à chaleur performante, ravalement récent...Parfaitement adaptée aux besoins d'une grande famille ou d'une activité indépendante, elle bénéficie de trois entrées séparées, permettant une organisation flexible et évolutive.

Au rez-de-chaussée, une entrée accueillante, une vaste pièce polyvalente s'ouvre sur un espace buanderie, un cellier et une chambre avec salle d'eau privative. Idéal pour un ado, pour recevoir, télétravailler ou exercer une profession libérale dans un cadre agréable.

À l'étage, la cuisine aménagée et équipée mène à un spacieux séjour baigné de lumière et chaleureux. Une chambre, un bureau ainsi qu'une salle de bains avec WC complètent ce niveau.

Au deuxième étage, le palier distribue trois chambres aux volumes agréables... à chacun son espace personnel.

À l'extérieur, un jardin intime, à l'abri des regards, invite au calme et à la détente. Une cave voutée, une pièce de stockage, ainsi qu'une grande pièce brute à aménager selon vos projets (atelier, appartement, salle de jeux…) viennent compléter l'ensemble.

À 15 min de l'aéroport CDG, située à proximité immédiate des écoles, commerces, transports et axes routiers, cette maison unique allie charme, confort et fonctionnalité.

Une opportunité rare pour les amateurs de biens qui ont une âme, une histoire, et un fort potentiel de vie.

*** Visite virtuelle sur demande ***

Taxe foncière : 2113€ par an

Ce bien est commercialisé par Casavo.

Estimation des coûts annuels d'énergie : entre 2040 € et 2820 € par an. Prix moyens des énergies indexés sur les années 2021, 2022, 2023

Intéressé par ce bien ? Plus d'informations sur le site de Casavo.
Voir plus

Référence: 30288
Honoraires à la charge du vendeur.
DPE
A
B
C
D
E
F
G
GES
A
B
C
D
E
F
G

Prêt immobilier

Vous souhaitez connaître votre capacité d’emprunt et trouver le meilleur crédit immobilier ?
Réaliser une simulation gratuite

Maison à COURTRY
Maison à COURTRY
Maison à COURTRY
Maison à COURTRY
Maison à COURTRY
Maison à COURTRY
Maison à COURTRY
Maison à COURTRY
Maison à COURTRY
Maison à COURTRY
Maison à COURTRY
Maison à COURTRY
Maison à COURTRY
Maison à COURTRY
Maison à COURTRY
Maison à COURTRY
Maison à COURTRY
Maison à COURTRY
Maison à COURTRY
Maison à COURTRY
Maison à COURTRY
Maison à COURTRY
Ce site est protégé par reCAPTCHA la Politique de confidentialité et les Conditions d’utilisation de Google s’appliquent.
Obtenir un prêt immobilier au meilleur taux ?

En poursuivant votre navigation sans modifier vos paramètres, vous acceptez l'utilisation de cookies susceptibles de réaliser des statistiques de visite. Cliquez ici pour plus d'informations