Bénéficiez des services de nos partenaires locaux soigneusement sélectionnés
pour vous accompagner dans votre parcours d'achat immobilier

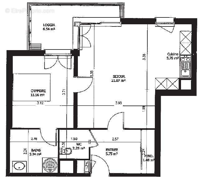
Type 2 récent avec balcon/jardin d'hiver, et parking

— Angers 49100 —
174 900 €
53 m²
2 pièces
parkingbalcon/terrasse

Nos partenaires locaux
Angers, proche Tramway et CHU.
SPECIAL INVESTISSEURS: Très bel appartement moderne et lumineux avec locataire en place.
Le locataire profite d'un logement situé dans un immeuble récent, avec ascenseur et stationnement privatif.
Ce type 2 de 53m2 dispose d'une belle entrée avec grand placard, d'un vaste séjour ouvert sur sa cuisine aménagée et sur son lumineux balcon.
Ce balcon bénéficie de baies vitrées coulissantes permettant d'obtenir au choix soit un jardin d'hiver soit un extérieur ouvert sur les jardins environnants.
Logement Conventionné PLS toujours active. Avantages fonciers.
Charges de copropriété mensuelles: 108€ - DPE classé C151 / A4;
Estimation des coûts annuels d’énergie du logement 700€ / 1000€
(Prix moyens des énergies indexés sur les années 2021, 2022, 2023)
33 lots d'habitation.
THOMAS PORRET agent commercial RCS EI 808006472
[Coordonnées masquées] - Votre projet immobilier est sous une bonne ETOILE -
Voir plus

Référence: 118
Bien en copropriété. Nombre de lots : 108. Charges de copropriété : 1300 €.
Honoraires d'agence de 6% à la charge de l'acquéreur
Barème des honoraires
DPE
A
B
C
D
E
F
G
GES
A
B
C
D
E
F
G

Prêt immobilier

Vous souhaitez connaître votre capacité d’emprunt et trouver le meilleur crédit immobilier ?
Réaliser une simulation gratuite

Appartement à ANGERS
Appartement à ANGERS
Appartement à ANGERS
Appartement à ANGERS
Appartement à ANGERS
Appartement à ANGERS
Appartement à ANGERS
Appartement à ANGERS
Appartement à ANGERS
Appartement à ANGERS
Ce site est protégé par reCAPTCHA la Politique de confidentialité et les Conditions d’utilisation de Google s’appliquent.
Obtenir un prêt immobilier au meilleur taux ?

En poursuivant votre navigation sans modifier vos paramètres, vous acceptez l'utilisation de cookies susceptibles de réaliser des statistiques de visite. Cliquez ici pour plus d'informations