Maison labastide st pierre - 7 pièce(s) - 206 m2

— Labastide-Saint-Pierre 82370 —
359 000 €
206 m² / 2 334 m²
7 pièces
parkingjardinpiscine

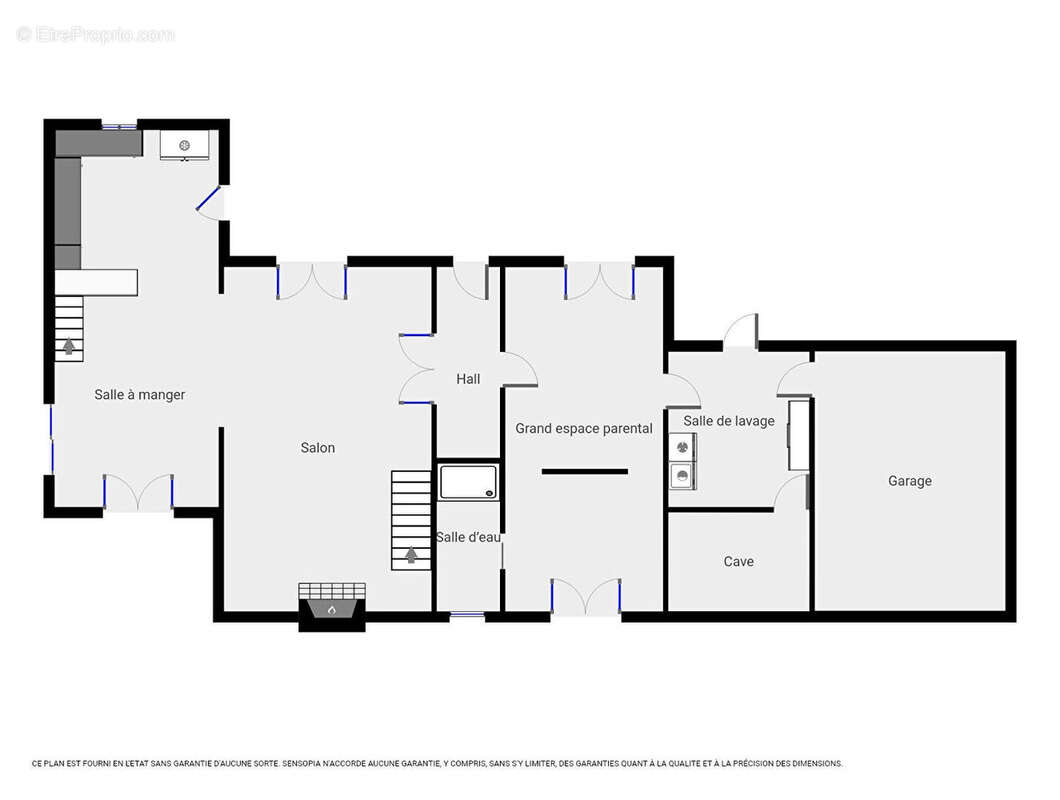
Sur la commune de Labastide-Saint-Pierre, à 45 minutes de Toulouse et à 20 minutes de Montauban, cette grande maison au style provençal offre une multitudes de pièces : Dans un grand L, on trouve un vaste salon cocooning avec son poêle à bois, une salle à manger entourée de baies vitrées, et une lumineuse cuisine ouverte. L'espace nuit est composé de 5 chambres (dont une suite parentale), de 2 salles d'eau + une salle de bain, et d'une mezzanine pouvant servir de couchage d'appoint supplémentaire. Un bureau avec ouverture sur la terrasse avant peut prendre place dans l'espace parental. Au-delà de sa belle surface, la maison est aussi pratique puisqu'elle est équipée d'une buanderie, d'une cave à vin, d'un garage fermé. Dehors, c'est un véritable paysage de campagne que l'on retrouve tout autour de la maison. Plus de 2300 m² de jardin clôturé, avec arbres, pins, et piscine au sel sécurisée. Une maison qui ne demande qu'à accueillir une famille nombreuse, ou un projet de cohabitation !
Voir plus

Référence: 1411
Honoraires à la charge du vendeur.
Barème des honoraires
DPE
A
B
C
D
E
F
G
GES
A
B
C
D
E
F
G

Prêt immobilier

Vous souhaitez connaître votre capacité d’emprunt et trouver le meilleur crédit immobilier ?
Réaliser une simulation gratuite

Maison à LABASTIDE-SAINT-PIERRE
Maison à LABASTIDE-SAINT-PIERRE
Maison à LABASTIDE-SAINT-PIERRE
Maison à LABASTIDE-SAINT-PIERRE
Maison à LABASTIDE-SAINT-PIERRE
Maison à LABASTIDE-SAINT-PIERRE
Maison à LABASTIDE-SAINT-PIERRE
Maison à LABASTIDE-SAINT-PIERRE
Maison à LABASTIDE-SAINT-PIERRE
Maison à LABASTIDE-SAINT-PIERRE
Maison à LABASTIDE-SAINT-PIERRE
Maison à LABASTIDE-SAINT-PIERRE
Ce site est protégé par reCAPTCHA la Politique de confidentialité et les Conditions d’utilisation de Google s’appliquent.
Obtenir un prêt immobilier au meilleur taux ?

En poursuivant votre navigation sans modifier vos paramètres, vous acceptez l'utilisation de cookies susceptibles de réaliser des statistiques de visite. Cliquez ici pour plus d'informations