Bénéficiez des services de nos partenaires locaux soigneusement sélectionnés
pour vous accompagner dans votre parcours d'achat immobilier

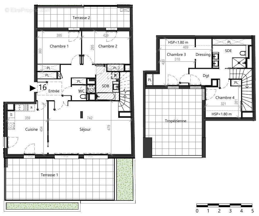
Appartement t5 duplex - 136m2 - toulouse

— Toulouse 31400 —
1 150 000 €
136 m²
5 pièces
parkingbalcon/terrasseascenseur

Nos partenaires locaux
Magnifique appartement T5 Duplex en dernier étage de 136m2 situé en centre ville de Toulouse. L'appartement dispose de deux terrasses ainsi que d'une tropézienne pour un total de 82m2 avec une exposition Ouest-Est. Un grand séjour/cuisine de 50m2 . L'appartement vous offre quatre belles chambres, une salle de bain et une salle d'eau, wc suspendu, dressing. Belles Prestations : Peinture lisse, parquet stratifié, pompe à chaleur, volets roulants électriques. L'appartement dispose de deux places de parking en sous-sol. N'hésitez pas à me contacter, d'autres appartements sont disponibles [Coordonnées masquées] [Coordonnées masquées]
Voir plus

Barème des honoraires
DPE
A
B
C
D
E
F
G
GES
A
B
C
D
E
F
G

Prêt immobilier

Vous souhaitez connaître votre capacité d’emprunt et trouver le meilleur crédit immobilier ?
Réaliser une simulation gratuite

Appartement à TOULOUSE
Appartement à TOULOUSE
Appartement à TOULOUSE
Appartement à TOULOUSE
Appartement à TOULOUSE
Appartement à TOULOUSE
Appartement à TOULOUSE
Appartement à TOULOUSE
Appartement à TOULOUSE
Ce site est protégé par reCAPTCHA la Politique de confidentialité et les Conditions d’utilisation de Google s’appliquent.
Obtenir un prêt immobilier au meilleur taux ?

En poursuivant votre navigation sans modifier vos paramètres, vous acceptez l'utilisation de cookies susceptibles de réaliser des statistiques de visite. Cliquez ici pour plus d'informations