Appartement quimper 3 pièce(s) 90.26 m2

— Quimper 29000 —
494 000 €
90 m²
3 pièces

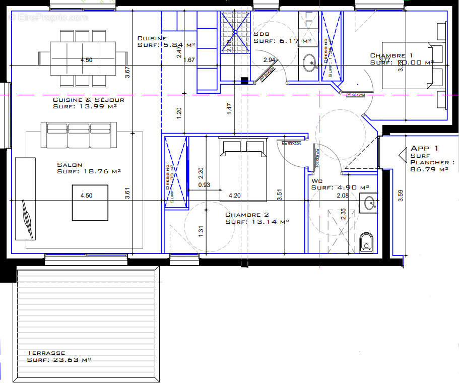
Proche du Halage, appartement neuf, livraison prévue été 2025. Il comprend : une entrée, un salon séjour donnant sur un terrasse de plus de 23m2, une cuisine ouverte, deux chambres, une salle de bains, W.C indépendant. Jardin, place de parking et cave. Renseignements auprès de l'AGENCE DE L'ODET QUIMPER au [Coordonnées masquées]

Référence: 5082
Honoraires d'agence de 4% à la charge de l'acquéreur
Barème des honoraires

Prêt immobilier

Vous souhaitez connaître votre capacité d’emprunt et trouver le meilleur crédit immobilier ?
Réaliser une simulation gratuite

Appartement à QUIMPER
Appartement à QUIMPER
Appartement à QUIMPER
Appartement à QUIMPER
Appartement à QUIMPER
Ce site est protégé par reCAPTCHA la Politique de confidentialité et les Conditions d’utilisation de Google s’appliquent.
Obtenir un prêt immobilier au meilleur taux ?

En poursuivant votre navigation sans modifier vos paramètres, vous acceptez l'utilisation de cookies susceptibles de réaliser des statistiques de visite. Cliquez ici pour plus d'informations