Bénéficiez des services de nos partenaires locaux soigneusement sélectionnés
pour vous accompagner dans votre parcours d'achat immobilier

Maison 166m² à jardin

— Jardin 38200 —
n.c. €
166 m² / 1 310 m²
6 pièces
parkingbalcon/terrassejardin

Nos partenaires locaux
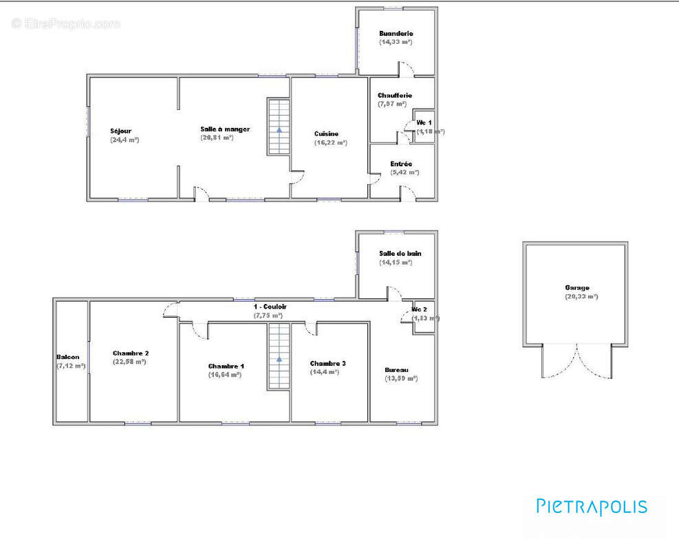
Sous compromis : Maison ancienne de 6 pièces de 166 m² habitable (183 m² au sol) édifiée sur une parcelle de terrain 1300 m² constructible.

Environnement:
- Vienne à 7 mins
- Arrêt de bus scolaire à proximité
- Ecole à 2 mins
- Commerces à 2 mins

Elle est composée :

Au Rez-de-chaussée:
- Hall d'entrée avec placards
- cuisine équipée indépendante
- salon/salle à manger
- Chaufferie
- Buanderie
- WC indépendant

A l'étage:
- 3 grandes chambres, possibilité de 2 chambres supplémentaires
- salle de bain avec douche et baignoire
- WC indépendant
- Combles aménageables

A l'extérieur
- Un garage
- Portail électrique
- Une cabane de jardin

Travaux effectués
- Menuiseries PVC doble vitrage (2016/2017)
- Toiture (2014)
- Ravalement façade (2007)
- Volets (2008)
- Pompe à chaleur (2023)

En complément
- Tout à l'égout
- Pompe à chaleur
- Fibre optique

Contacter Marion SCOUARNEC au [Coordonnées masquées] ou au [Coordonnées masquées].

Classe énergie D, Classe climat B Montant moyen estimé des dépenses annuelles d'énergie pour un usage standard, établi à partir des prix de l'énergie de l'année 2021 : entre 1940.00 et 2670.00 €. Les informations sur les risques auxquels ce bien est exposé sont disponibles sur le site Géorisques : georisques.gouv.fr.

Votre conseiller Pietrapolis Vienne : Marion SCOUARNEC
Agent commercial (Entreprise individuelle)
RSAC 810310094
RCP 138016254
Voir plus

Référence: 280-PIETRAPOLIS
Honoraires à la charge du vendeur.
Barème des honoraires
DPE
A
B
C
D
E
F
G
GES
A
B
C
D
E
F
G

Prêt immobilier

Vous souhaitez connaître votre capacité d’emprunt et trouver le meilleur crédit immobilier ?
Réaliser une simulation gratuite

Maison à JARDIN
Maison à JARDIN
Maison à JARDIN
Maison à JARDIN
Maison à JARDIN
Maison à JARDIN
salle à manger - Maison à JARDIN
salle à manger
Salon - Maison à JARDIN
Salon
Maison à JARDIN
Ce site est protégé par reCAPTCHA la Politique de confidentialité et les Conditions d’utilisation de Google s’appliquent.
Obtenir un prêt immobilier au meilleur taux ?

En poursuivant votre navigation sans modifier vos paramètres, vous acceptez l'utilisation de cookies susceptibles de réaliser des statistiques de visite. Cliquez ici pour plus d'informations