Bénéficiez des services de nos partenaires locaux soigneusement sélectionnés
pour vous accompagner dans votre parcours d'achat immobilier

Terrain constructible avec permis

— Sens 89100 —
65 000 €

Nos partenaires locaux
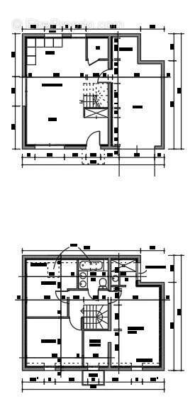
idealement situe a proximite des ecoles et du centre ville de sens (89100) (55 mns en train gare de bercy paris), proche de l'ecole charle michel, au calme et sans vis a vis, 3 terrains a batir avec permis de construction en cours pour 3 maisons individuelles composees d'une piece a vivre avec cuisine ouverte, 3 ou 4 chambres (selon le modele, une chambre de plain pied), 2 salles d'eau, avec jardin et garage. chaque terrain est vendu individuellement. mis en relation avec l'architecte. prix par terrain 65 000 ttc (54167€ ht). frais dit de notaire reduit a 3% au lieu de 8%. (photos non contractuelles)
Voir plus

Référence: 85968742

Prêt immobilier

Vous souhaitez connaître votre capacité d’emprunt et trouver le meilleur crédit immobilier ?
Réaliser une simulation gratuite

Terrain à SENS
Terrain à SENS
Terrain à SENS
Terrain à SENS
Terrain à SENS
Terrain à SENS
Terrain à SENS
Terrain à SENS
Terrain à SENS
Ce site est protégé par reCAPTCHA la Politique de confidentialité et les Conditions d’utilisation de Google s’appliquent.
Obtenir un prêt immobilier au meilleur taux ?

En poursuivant votre navigation sans modifier vos paramètres, vous acceptez l'utilisation de cookies susceptibles de réaliser des statistiques de visite. Cliquez ici pour plus d'informations