Bénéficiez des services de nos partenaires locaux soigneusement sélectionnés
pour vous accompagner dans votre parcours d'achat immobilier

Opportunité : villa neuve t4 de plain pied avec garage

— Auch 32000 —
240 000 €
99 m² / 600 m²
4 pièces
parkingbalcon/terrassejardin

Nos partenaires locaux
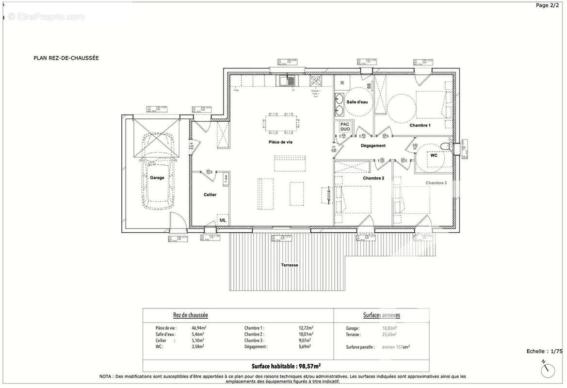
Derniers lots disponibles ! Unique à Auch, dans un quartier paisible à proximité du centre-ville, des commodités et des lignes de bus, découvrez ce nouveau lotissement proposé à la vente en VEFA (Vente en l'État Futur d'Achèvement), avec une livraison prévue fin 2026. Les prix affichés sont directs promoteur. Ces programmes sont assujettis aux frais de notaire réduits. Cette villa neuve T4 de plain pied offre un cadre de vie moderne et confortable. L'entrée avec placard dessert un cellier, une pièce de vie lumineuse grâce à ses grandes ouvertures. Le coin nuit propose trois chambres de 9 à 12 m², dont deux équipées de placards, accompagnées d'une salle d'eau, des WC indépendant pour votre confort quotidien. Pour plus de praticité, un garage de 18 m², accessible depuis le séjour. Ce bien est proposé en VEFA avec une vente sur plan. La visite d'une villa témoin est possible sur rendez-vous, et d'autres biens sont également disponibles et consultables dans notre agence. Tous les biens seront livrés finis, avec le terrain prêt à être semé. Les peintures et la cuisine resteront à votre charge, vous permettant de personnaliser votre futur chez-vous selon vos goûts et besoins. Cette villa est idéale pour : Profiter d'une réelle opportunité d'acheter un bien neuf sans les contraintes de la construction Bénéficier d'une maison neuve de plain pied. Investir dans une maison écologique classée en double A+ selon la norme RE2020, garantissant un confort optimal et des économies d'énergie significatives. Ne manquez pas cette chance unique à Auch d'acquérir votre propre villa dans ce nouveau lotissement prometteur. Contactez-nous dès maintenant pour organiser une visite de la villa témoin. Ps : photos non contractuelles
Voir plus

Référence: 1364
Honoraires à la charge du vendeur.
Barème des honoraires

Prêt immobilier

Vous souhaitez connaître votre capacité d’emprunt et trouver le meilleur crédit immobilier ?
Réaliser une simulation gratuite

Maison à AUCH
Maison à AUCH
Maison à AUCH
Maison à AUCH
Maison à AUCH
Maison à AUCH
Maison à AUCH
Maison à AUCH
Maison à AUCH
Maison à AUCH
Maison à AUCH
Maison à AUCH
Maison à AUCH
Maison à AUCH
Maison à AUCH
Maison à AUCH
Maison à AUCH
Maison à AUCH
Maison à AUCH
Maison à AUCH
Maison à AUCH
Maison à AUCH
Maison à AUCH
Maison à AUCH
Maison à AUCH
Ce site est protégé par reCAPTCHA la Politique de confidentialité et les Conditions d’utilisation de Google s’appliquent.
Obtenir un prêt immobilier au meilleur taux ?

En poursuivant votre navigation sans modifier vos paramètres, vous acceptez l'utilisation de cookies susceptibles de réaliser des statistiques de visite. Cliquez ici pour plus d'informations