Bénéficiez des services de nos partenaires locaux soigneusement sélectionnés
pour vous accompagner dans votre parcours d'achat immobilier

3 pieces front de mer

— Menton 06500 —
555 000 €
68 m²
3 pièces
balcon/terrasse

Nos partenaires locaux
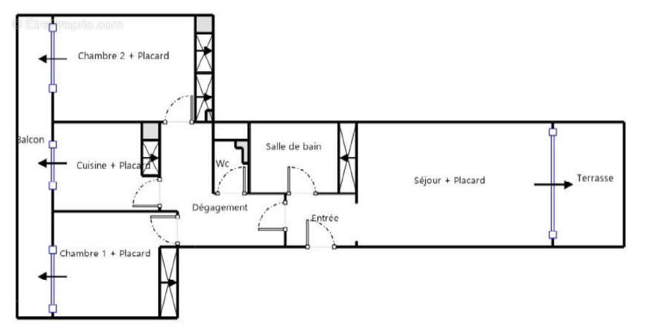
Votre agence vous propose à la vente, en front de mer à Menton, ce bel appartement traversant de 3 pièces situé dans une résidence de standing.
D’une superficie d’environ 68 m2, cet appartement lumineux offre un agencement fonctionnel et agréable. Il se compose d’un spacieux séjour ouvrant sur une terrasse avec une vue imprenable sur la mer, ainsi que d’une cuisine indépendante.
L’espace nuit comprend deux chambres avec placards, chacune donnant accès à un balcon. Une salle de bains et un WC indépendant complètent ce bien.
Possibilité d’acquérir un garage en supplément.
Un bien rare, à seulement quelques pas des plages, des commerces et de toutes les commodités.
Voir plus

Bien en copropriété.
Honoraires à la charge du vendeur.
Barème des honoraires
DPE
A
B
C
D
E
F
G
GES
A
B
C
D
E
F
G

Prêt immobilier

Vous souhaitez connaître votre capacité d’emprunt et trouver le meilleur crédit immobilier ?
Réaliser une simulation gratuite

Appartement à MENTON
Appartement à MENTON
Appartement à MENTON
Appartement à MENTON
Appartement à MENTON
Appartement à MENTON
Appartement à MENTON
Ce site est protégé par reCAPTCHA la Politique de confidentialité et les Conditions d’utilisation de Google s’appliquent.
Obtenir un prêt immobilier au meilleur taux ?

En poursuivant votre navigation sans modifier vos paramètres, vous acceptez l'utilisation de cookies susceptibles de réaliser des statistiques de visite. Cliquez ici pour plus d'informations