Maison neuve vitry sur seine 116 m2 4 pièces

— Vitry-Sur-Seine 94400 —
448 000 €
116 m² / 220 m²
4 pièces
parkingjardin

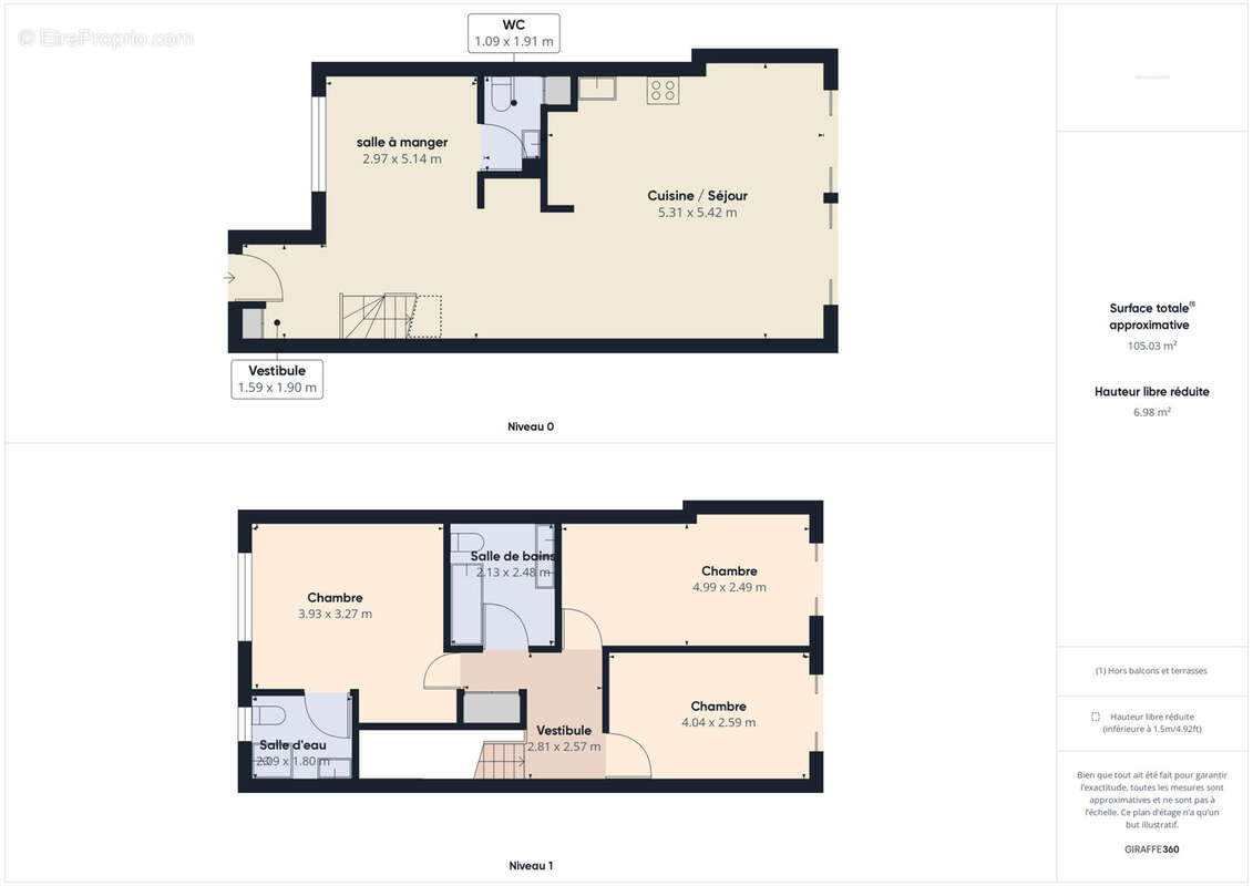
Vitry Sur Seine au sein de l'eco- quartier en plein essor des Ardoines en bord de Seine, à proximité de la ligne 15 du métro grand Paris, du RER C et du Tzen5, une maison neuve et traversante en pleine propriété, édifiée sur un terrain de 220 m2 composée au RDC d'une entrée , d'une salle à manger, d'un séjour avec cuisine ouverte aménagée et entièrement équipée s'ouvrant sur un grand jardin au calme et d'un WC. Au 1er étage, 3 chambres ( possibilité 4) , une salle de bain et une pièce d'eau toutes deux avec WC. Un double stationnement de voiture complète le bien . Excellent DPE ( C) Commerces au pied de la maison. Gare des Ardoines/ RER C à 750 m et T9 Wateau-Rondenay à 500 m. Usage familiale ou excellent plan co living ( taux rentabilité 8%) .
Voir plus

Référence: 90
Honoraires d'agence de 3.46% à la charge de l'acquéreur
Barème des honoraires
DPE
A
B
C
D
E
F
G
GES
A
B
C
D
E
F
G

Prêt immobilier

Vous souhaitez connaître votre capacité d’emprunt et trouver le meilleur crédit immobilier ?
Réaliser une simulation gratuite

Maison à VITRY-SUR-SEINE
Maison à VITRY-SUR-SEINE
Maison à VITRY-SUR-SEINE
Maison à VITRY-SUR-SEINE
Maison à VITRY-SUR-SEINE
Maison à VITRY-SUR-SEINE
Maison à VITRY-SUR-SEINE
Maison à VITRY-SUR-SEINE
Maison à VITRY-SUR-SEINE
Maison à VITRY-SUR-SEINE
Maison à VITRY-SUR-SEINE
Maison à VITRY-SUR-SEINE
Maison à VITRY-SUR-SEINE
Maison à VITRY-SUR-SEINE
Maison à VITRY-SUR-SEINE
Maison à VITRY-SUR-SEINE
Maison à VITRY-SUR-SEINE
Maison à VITRY-SUR-SEINE
Maison à VITRY-SUR-SEINE
Maison à VITRY-SUR-SEINE
Maison à VITRY-SUR-SEINE
Ce site est protégé par reCAPTCHA la Politique de confidentialité et les Conditions d’utilisation de Google s’appliquent.
Obtenir un prêt immobilier au meilleur taux ?

En poursuivant votre navigation sans modifier vos paramètres, vous acceptez l'utilisation de cookies susceptibles de réaliser des statistiques de visite. Cliquez ici pour plus d'informations