Maison ossature bois

— Lamelouze 30110 —
352 500 €
225 m² / 3 600 m²
7 pièces
parkingbalcon/terrasse

Exclusivité Agence.

Amoureux de la nature, venez découvrir cette maison en ossature Bois de 225 m² habitables implantée sur un terrain de 3600m². Ses volumes et ses multiples terrasses exposées plein sud vous séduiront autant que sa situation exceptionnelle. En effet, dominant la Vallée du Galeizon, véritable écrin de nature cévenole, vous y goûterez au plaisir d'une vie paisible et bucolique.

Caractéristiques de l'habitat :

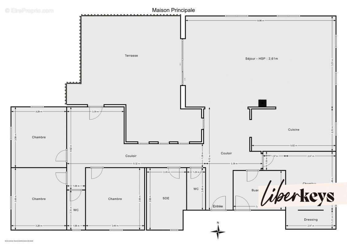
- Niveau principal (160m²) : belle pièce à vivre de 70 m², lumineuse et conviviale, avec cuisine ouverte aménagée, salon avec poêle à bois, accès direct à terrasse de 40 m², couloir desservant quatre chambres de 11 à 14 m² (dont une avec dressing), espace bureau de 19 m², deux toilettes, salle d'eau avec douche à l'italienne et cellier.

- Niveau inférieur : appartement indépendant de 52 m² (nécessitant travaux) avec deux chambres, pièce de vie et future salle d'eau avec toilettes ; grand garage, deux réserves/ateliers (environ 70m²) et pièce/bureau de 11 m² ; terrasse de 60 m² avec petite piscine (en partie couverte et avec brise vent), dont l'accès se fait via l'appartement et le garage.

- Rez-de-jardin : atelier d'environ 40 m² et vide sanitaire avec cuves de récupération d'eau de pluie (non raccordées - 32 000L).

Taxe foncière : 1 534 €/an.
Montant estimé des dépenses annuelles d'énergie pour un usage standard : entre 990 € et 1420 € par an. Prix moyens des énergies indexés sur l'année 2021 (abonnements compris).
Date de réalisation du diagnostic : 11/11/2022.

Les honoraires sont à la charge du vendeur.
Référence annonce : DOM19112.

Ce bien vous plaît ? Contactez Armelle Couppez, votre conseiller Immobilier,
Immatriculée au RSAC de Nîmes sous le numéro 485 337 471.

Les informations sur les risques auxquels ce bien est exposé sont disponibles sur le site Géorisques : www.georisques.gouv.fr
Voir plus

Référence: DOM19112
Honoraires à la charge du vendeur.
DPE
A
B
C
D
E
F
G
GES
A
B
C
D
E
F
G

Prêt immobilier

Vous souhaitez connaître votre capacité d’emprunt et trouver le meilleur crédit immobilier ?
Réaliser une simulation gratuite

Maison à LAMELOUZE
Maison à LAMELOUZE
Maison à LAMELOUZE
Maison à LAMELOUZE
Maison à LAMELOUZE
Maison à LAMELOUZE
Maison à LAMELOUZE
Maison à LAMELOUZE
Maison à LAMELOUZE
Maison à LAMELOUZE
Maison à LAMELOUZE
Maison à LAMELOUZE
Maison à LAMELOUZE
Maison à LAMELOUZE
Maison à LAMELOUZE
Ce site est protégé par reCAPTCHA la Politique de confidentialité et les Conditions d’utilisation de Google s’appliquent.
Obtenir un prêt immobilier au meilleur taux ?

En poursuivant votre navigation sans modifier vos paramètres, vous acceptez l'utilisation de cookies susceptibles de réaliser des statistiques de visite. Cliquez ici pour plus d'informations