Bénéficiez des services de nos partenaires locaux soigneusement sélectionnés
pour vous accompagner dans votre parcours d'achat immobilier

Appartement 88m² à vienne

— Vienne 38200 —
n.c. €
89 m²
3 pièces
balcon/terrasse

Nos partenaires locaux
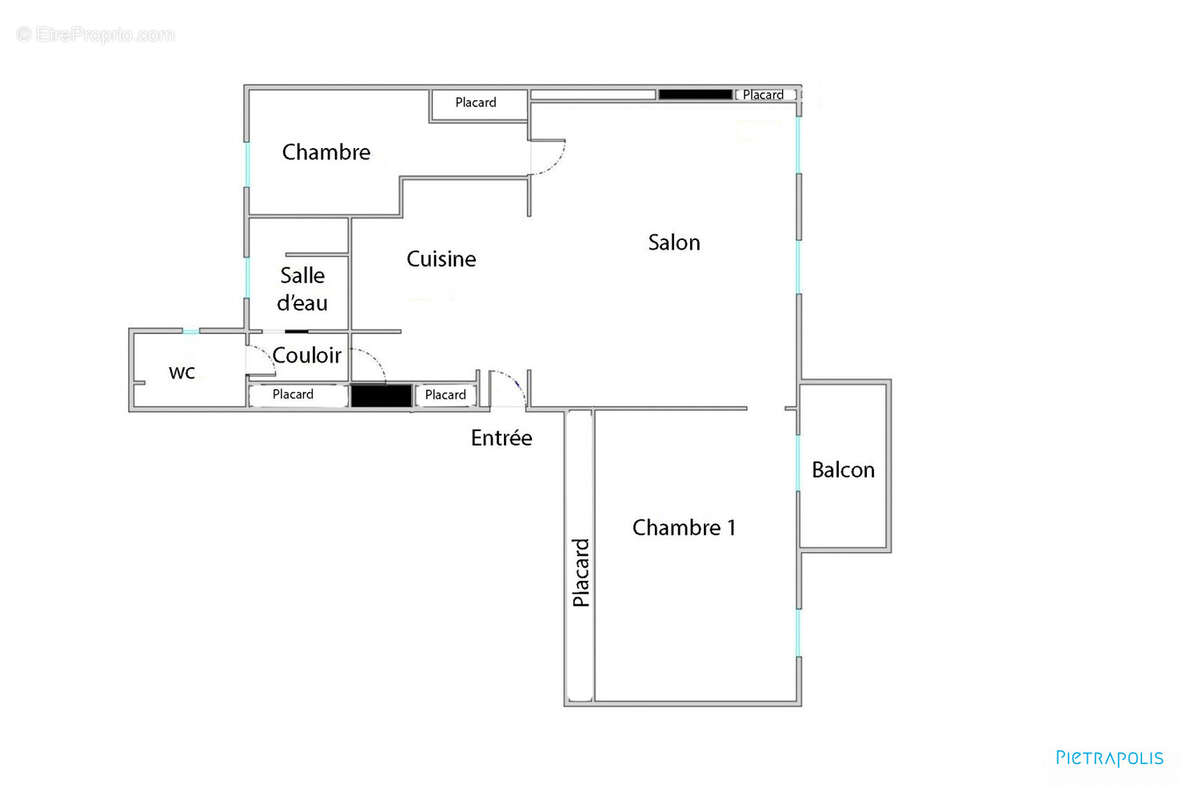
Sous compromis : PIETRAPOLIS IMMOBILIER vous propose au coeur de VIENNE, en premier étage (de 4), cet appartement coup-de-coeur, entièrement rénové en 2020, T3, standing, de 89m2 comprenant salon, 2 chambres, balcon. Situé à 2 mn de la gare, au pied des commerces et de toutes commodités, il allie le charme du bâti ancien (Pierres, staff, parquets massifs, hauteur sous plafond de 3m) et d'une modernité que l'on retrouve dans chaque pièces (Climatisation réversible, domotique générale, gestion éclairage, rideaux, son, tv)

Environnement :
- Gare : 2mn à pied
- Bus : 2 mn à pied
- Accès N7 / A7 : 5mn

Étage 1 :
- Une entrée
- Un salon
- Espace cuisine
- Deux chambres
- Salle d'eau
- Toilettes
- Dégagement

En extérieur :
- Un balcon (5,30m2)

Compléments :
- Fibre
- Interphone
- Cuisine sur-mesure aménagée et équipée
- Four SIEMENS
- Plaque cuisson (hotte intégrée) SIEMENS
- Lave-vaisselle SIEMENS
- Réfrigérateur (semi-américain) LIEBHERR
- Cave à vin LIEBHERR
- Machine à café intégrée SIEMENS
- Machine à laver – Sèche-linge SIEMENS
- Rideaux (gestion domotique)
- Éclairage (gestion domotique)
- Musique (gestion domotique)
- Écran cinéma
- TV encastrée motorisée
- Sol parquet massif à chevrons
- Sol carrelage 1,20m x 0,60m
- Murs décroutés pierre rejointés
- Murs décroutés et chaux
- Plafond staff (par artisan staffeur)
- Soubassements bois neufs
- Chauffage PAC air-air (caissons intégrés)
- Cheminée éthanol (agrément)
- Chauffe-eau plat
- Hauteur espaces vie : 3,00m
- Balcon-terrasse entièrement repris en structure

- DPE : C (790€ - 1110€ / an)
- Diagnostic amiante : Vierge
- Diagnostic électricité : Aucune anomalie
- Diagnostic plomb : quelques traces non-dégradées sous peintures neuves

- 8 lots d'habitations
- Pas de procédure en cours
- Charges copropriété : 100 €/mois (Espaces communs, assurances)
- Électricité : 85€ / mois
- Taxe foncière 2025 : 2197€

Honoraires d'agence à la charge du vendeur

Contacter Cyril MARGOUILLAT au [Coordonnées masquées] ou [Coordonnées masquées]



Dans une copropriété de 13 lots. Quote-part moyenne du budget prévisionnel 1 200 €/an. Aucune procédure n'est en cours. Classe énergie C, Classe climat A Montant moyen estimé des dépenses annuelles d'énergie pour un usage standard, établi à partir des prix de l'énergie de l'année 2021 : entre 790.00 et 1110.00 €. Les informations sur les risques auxquels ce bien est exposé sont disponibles sur le site Géorisques : georisques.gouv.fr.

Carte pro. CPI38[Coordonnées masquées]00011
Voir plus

Référence: 281-PIETRAPOLIS
Bien en copropriété. Nombre de lots : 13. Charges de copropriété : 1200 €.
Honoraires à la charge du vendeur.
Barème des honoraires
DPE
A
B
C
D
E
F
G
GES
A
B
C
D
E
F
G

Prêt immobilier

Vous souhaitez connaître votre capacité d’emprunt et trouver le meilleur crédit immobilier ?
Réaliser une simulation gratuite

Appartement à VIENNE
Appartement à VIENNE
Appartement à VIENNE
Appartement à VIENNE
Appartement à VIENNE
Appartement à VIENNE
Appartement à VIENNE
Appartement à VIENNE
Appartement à VIENNE
Ce site est protégé par reCAPTCHA la Politique de confidentialité et les Conditions d’utilisation de Google s’appliquent.
Obtenir un prêt immobilier au meilleur taux ?

En poursuivant votre navigation sans modifier vos paramètres, vous acceptez l'utilisation de cookies susceptibles de réaliser des statistiques de visite. Cliquez ici pour plus d'informations