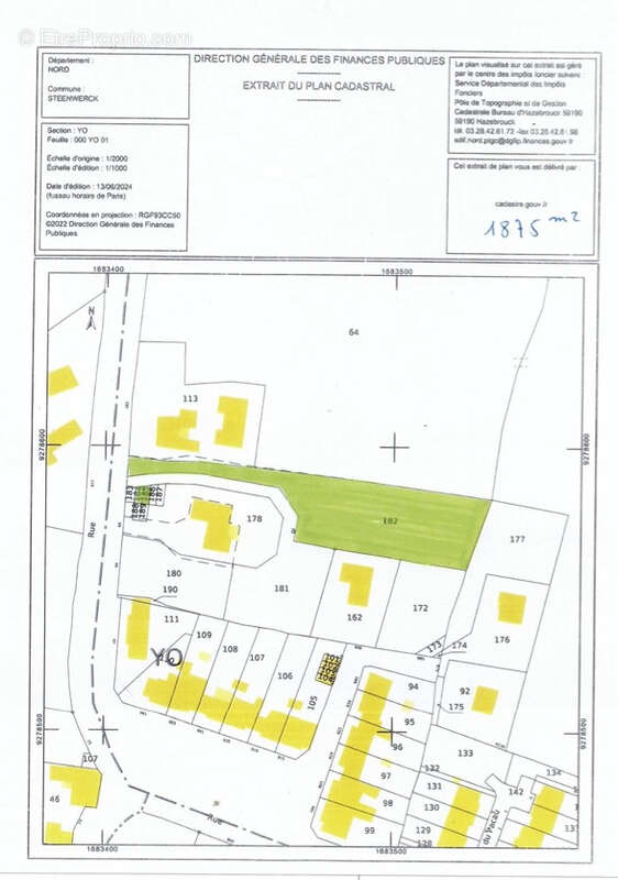
Hop home - terrain à bâtir de 1875 m2 environnement campagne à steenwerck (secteur cabaret du saule)

— Steenwerck 59181 —
107 000 €
1 875 m²
jardin

Votre agence HOP HOME est ravie de vous proposer ce beau terrain à bâtir non viabilisé d'une superficie généreuse de 1875 m2, situé sur la commune de STEENWERCK, dans un cadre paisible et verdoyant, à seulement 500 mètres du centre-ville et de toutes les commodités !

Localisation privilégiée :
Ce terrain se trouve dans un environnement champêtre très agréable, au secteur du Cabaret du Saule, alliant le charme de la campagne à la proximité des commodités.

Caractéristiques du terrain :
Surface : 1875 m2
Zone UC du Plan Local d’Urbanisme (PLU) de la commune
Emprise au sol max : 50%
Terrain non viabilisé mais raccordable au tout-à-l’égout
Étude de sol G1 réalisée
Le fonds du terrain est orienté Est et comprend une mare naturelle, élément paysager à préserver (ne pouvant être totalement comblée)

*HOP-Avis : Ce terrain est idéal pour votre projet de construction, dans un cadre serein et accessible. Une opportunité à ne pas manquer !
Pour toute demande de renseignements complémentaires et/ou demande de visite, n'hésitez pas à nous contacter.
*Bien non soumis au DPE
Les informations sur les risques auxquels ce bien est exposé sont disponibles sur le site Géorisques : www.georisques.gouv.fr
Les honoraires sont à la charge du Vendeur.
Voir plus

Référence: 212
Barème des honoraires

Prêt immobilier

Vous souhaitez connaître votre capacité d’emprunt et trouver le meilleur crédit immobilier ?
Réaliser une simulation gratuite

Terrain à STEENWERCK
Terrain à STEENWERCK
Terrain à STEENWERCK
Terrain à STEENWERCK
Terrain à STEENWERCK
Terrain à STEENWERCK
Ce site est protégé par reCAPTCHA la Politique de confidentialité et les Conditions d’utilisation de Google s’appliquent.
Obtenir un prêt immobilier au meilleur taux ?

En poursuivant votre navigation sans modifier vos paramètres, vous acceptez l'utilisation de cookies susceptibles de réaliser des statistiques de visite. Cliquez ici pour plus d'informations