Bénéficiez des services de nos partenaires locaux soigneusement sélectionnés
pour vous accompagner dans votre parcours d'achat immobilier

Murs centre medical 285m2 13014 marseille

— Marseille-14e 13014 —
610 000 €
285 m²

Nos partenaires locaux
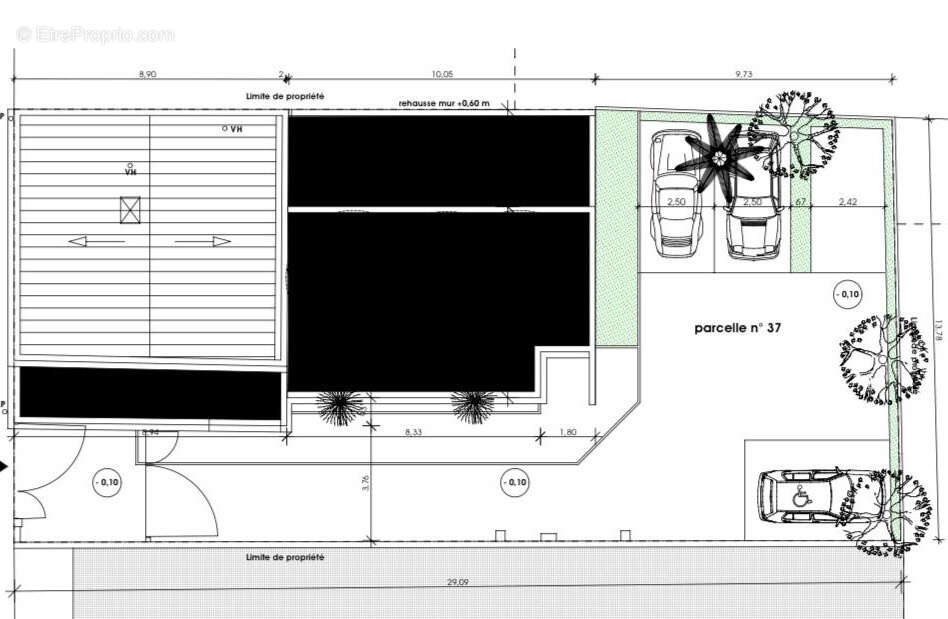
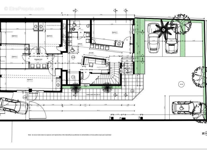
FIDUCIA IMMOBILIER vous présente à la vente les murs d'un centre médical en pleine propriéte d'une surface de 285m2 en R+1 sur une parcelle globale d'environ 400m2 et un terrain de 215m2.
Immeuble de 2006 en bon état, extérieur a emmenager ( parkings ).
Très bon DPE energétique ( B et A ).
Acces, Ascenseur et Wcs aux normes PMR. 
PVC Double Vitrage, Volets roulants éléctriques, Climatisation réversible, Visiophone.
Il se compose au RDC d'un espace acceuil avec salle d'attente, Wc et de cinq cabinets medicaux.
A l'étage ( avec ascenseur ) salle d'attente et quatre cabinets médicaux + Wc.
Taxe Foncière: 4182€
Idéal acquisition pour profession médicale ou investissement.
Actuellement libre de toute occupation.
Dossier sur demande.
Contact Fiducia Immobilier Christophe Brun inscrit au RSAC de Marseille sous le numéro 535349807. FIDUCIA IMMOBILIER L'Agence de la Corniche 199 Corniche Kennedy 13007 MARSEILLE
Voir plus

Honoraires à la charge du vendeur.
DPE
A
B
C
D
E
F
G
GES
A
B
C
D
E
F
G

Prêt immobilier

Vous souhaitez connaître votre capacité d’emprunt et trouver le meilleur crédit immobilier ?
Réaliser une simulation gratuite

Commerce à MARSEILLE-14E
Commerce à MARSEILLE-14E
Commerce à MARSEILLE-14E
Commerce à MARSEILLE-14E
Commerce à MARSEILLE-14E
Commerce à MARSEILLE-14E
Ce site est protégé par reCAPTCHA la Politique de confidentialité et les Conditions d’utilisation de Google s’appliquent.
Obtenir un prêt immobilier au meilleur taux ?

En poursuivant votre navigation sans modifier vos paramètres, vous acceptez l'utilisation de cookies susceptibles de réaliser des statistiques de visite. Cliquez ici pour plus d'informations