À tourrettes-sur-loup maison composée de 3 appartements + studio, piscine et vaste sous-sol

— Tourrettes-Sur-Loup 06140 —
1 250 000 €
257 m² / 3 300 m²
9 pièces
parkingbalcon/terrassejardinpiscine

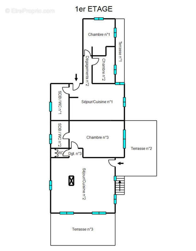
Bienvenue chez Côté Vence Côté Mer Immobilier, votre agence de confiance. Nous avons le plaisir de vous présenter cette maison atypique, nichée dans un environnement paisible et naturel, à proximité du charmant village de Tourrettes-sur-Loup. Elle est idéale pour un projet familial, locatif ou pour une activité de gîtes. Elle offre une excellente modularité avec trois appartements indépendants et un studio, répartis sur plusieurs niveaux sur un terrain de 3300 m2. Au rez-de-jardin, la propriété dispose d’un grand garage de 39 m2, d’une vaste cave de 96 m2 et d’un studio indépendant de 34,84 m2, parfait pour un espace d’accueil, un bureau ou un logement complémentaire. Au premier étage, deux appartements : Un 2 pièces, confortable et lumineux et un 3 pièces, offrant une agréable vue sur la nature environnante. Enfin, au deuxième étage, vous trouverez un troisième appartement de type 3 pièces, lui aussi entièrement indépendant, au calme et baigné de lumière. À l’extérieur, une piscine complète l’ensemble, parfaite pour profiter des journées ensoleillées dans un cadre serein et verdoyant. Ce bien aux multiples possibilités allie calme, nature et potentiel. Idéal pour une grande famille, un regroupement intergénérationnel ou un investissement locatif.
À découvrir rapidement ! Côté Vence Côté Mer immobilier, spécialisée dans la transaction immobilière de villas, maisons, terrains et appartements du pays Vençois jusqu'au bord de Mer. Une agence à votre écoute pour réaliser votre projet immobilier.
Voir plus

Référence: 46
Barème des honoraires
DPE
A
B
C
D
E
F
G
GES
A
B
C
D
E
F
G

Prêt immobilier

Vous souhaitez connaître votre capacité d’emprunt et trouver le meilleur crédit immobilier ?
Réaliser une simulation gratuite

Maison à TOURRETTES-SUR-LOUP
Maison à TOURRETTES-SUR-LOUP
Maison à TOURRETTES-SUR-LOUP
Maison à TOURRETTES-SUR-LOUP
Maison à TOURRETTES-SUR-LOUP
Maison à TOURRETTES-SUR-LOUP
Maison à TOURRETTES-SUR-LOUP
Maison à TOURRETTES-SUR-LOUP
Maison à TOURRETTES-SUR-LOUP
Maison à TOURRETTES-SUR-LOUP
Maison à TOURRETTES-SUR-LOUP
Maison à TOURRETTES-SUR-LOUP
Maison à TOURRETTES-SUR-LOUP
Maison à TOURRETTES-SUR-LOUP
Maison à TOURRETTES-SUR-LOUP
Maison à TOURRETTES-SUR-LOUP
Maison à TOURRETTES-SUR-LOUP
Maison à TOURRETTES-SUR-LOUP
Maison à TOURRETTES-SUR-LOUP
Maison à TOURRETTES-SUR-LOUP
Maison à TOURRETTES-SUR-LOUP
Maison à TOURRETTES-SUR-LOUP
Maison à TOURRETTES-SUR-LOUP
Maison à TOURRETTES-SUR-LOUP
Maison à TOURRETTES-SUR-LOUP
Maison à TOURRETTES-SUR-LOUP
Maison à TOURRETTES-SUR-LOUP
Maison à TOURRETTES-SUR-LOUP
Maison à TOURRETTES-SUR-LOUP
Maison à TOURRETTES-SUR-LOUP
Maison à TOURRETTES-SUR-LOUP
Maison à TOURRETTES-SUR-LOUP
Maison à TOURRETTES-SUR-LOUP
Maison à TOURRETTES-SUR-LOUP
Ce site est protégé par reCAPTCHA la Politique de confidentialité et les Conditions d’utilisation de Google s’appliquent.
Obtenir un prêt immobilier au meilleur taux ?

En poursuivant votre navigation sans modifier vos paramètres, vous acceptez l'utilisation de cookies susceptibles de réaliser des statistiques de visite. Cliquez ici pour plus d'informations