Bénéficiez des services de nos partenaires locaux soigneusement sélectionnés
pour vous accompagner dans votre parcours d'achat immobilier

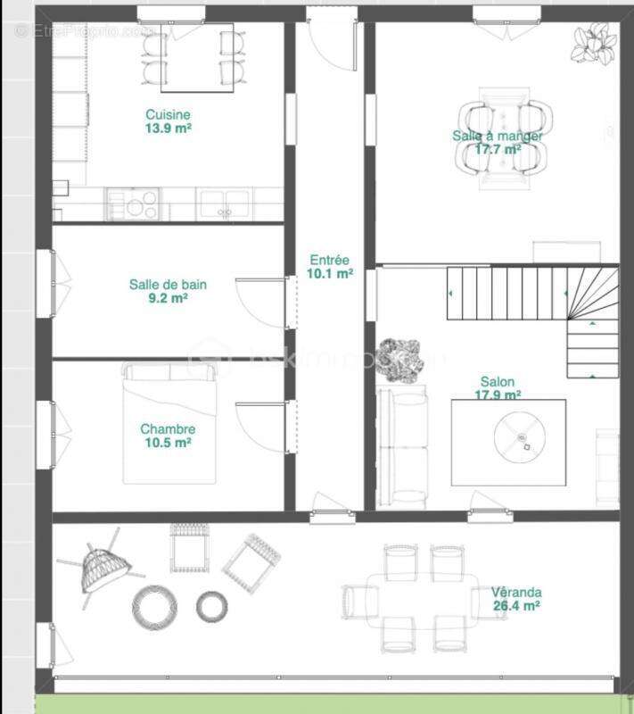
Maison de 150 m² avec garage et dépendances

— Coutras 33230 —
104 500 €
154 m² / 1 200 m²
6 pièces

Nos partenaires locaux
Située dans un quartier calme de Chamadelle, à seulement 6 minutes de Coutras et à 2 minutes à pied de l'école, cette maison de 150 m² habitables avec 4 chambres est idéale pour ceux qui recherchent l'espace, la tranquillité et le potentiel.

Édifiée sur un terrain de 1 200 m², elle comprend également un grand garage de 75 m² ainsi qu'une dépendance supplémentaire sur la parcelle, offrant de multiples possibilités : atelier, stockage, projet annexe, etc.

La maison est en bon état général. Quelques travaux de rafraîchissement sont à prévoir pour la remettre au goût du jour, mais aucun gros œuvre n'est nécessaire. Vous pourrez rapidement y poser vos valises et l'adapter à votre style, à votre rythme.

Entre campagne et proximité des commodités, ce bien rare allie confort, surface et cadre de vie agréable, idéal pour une famille ou un projet de vie à long terme.

Envie d'espace et de calme sans s'éloigner de tout ? Cette maison pourrait bien être votre prochaine adresse.

Contactez-moi dès maintenant pour organiser une visite.

Cette annonce référence 289544 vous est présentée par votre agent commercial BSK Immobilier YOANN FONTAINE (EI) immatriculé au RSAC de COMPIEGNE (60200) sous le numéro 89346022000013.

Prix du bien : 104 500,00 €
Les honoraires d'agence sont à la charge du vendeur.

A propos des performances énergétiques :
Date de réalisation du diagnostic énergétique : 02/11/2023
Score DPE : 401 kWhEP/m²/an
Score GES : 60 kgepCO2/m²/an
Montant estimé des dépenses annuelles d'énergie pour un usage standard : entre 5770.00 € et 7880.00 € par an. Prix moyens des énergies indexés sur l'année 2023 (abonnements compris).

Les informations sur les risques auxquels ce bien est exposé sont disponibles sur le site Géorisques : www.georisques.gouv.fr
Voir plus

Référence: 289544
Honoraires à la charge du vendeur.
DPE
A
B
C
D
E
F
G
GES
A
B
C
D
E
F
G

Prêt immobilier

Vous souhaitez connaître votre capacité d’emprunt et trouver le meilleur crédit immobilier ?
Réaliser une simulation gratuite

Maison à COUTRAS
Maison à COUTRAS
Maison à COUTRAS
Maison à COUTRAS
Maison à COUTRAS
Maison à COUTRAS
Maison à COUTRAS
Maison à COUTRAS
Maison à COUTRAS
Maison à COUTRAS
Maison à COUTRAS
Maison à COUTRAS
Maison à COUTRAS
Maison à COUTRAS
Maison à COUTRAS
Maison à COUTRAS
Ce site est protégé par reCAPTCHA la Politique de confidentialité et les Conditions d’utilisation de Google s’appliquent.
Obtenir un prêt immobilier au meilleur taux ?

En poursuivant votre navigation sans modifier vos paramètres, vous acceptez l'utilisation de cookies susceptibles de réaliser des statistiques de visite. Cliquez ici pour plus d'informations