Maison 187m² à bagneux

— Bagneux 92220 —
949 000 €
187 m² / 443 m²
8 pièces

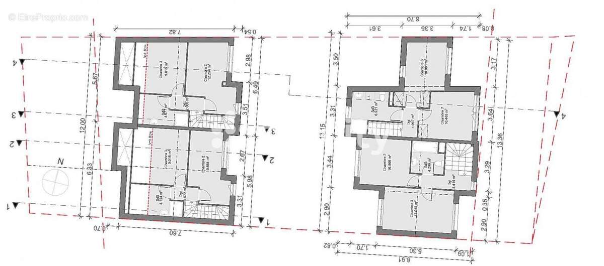
92220 BAGNEUX - RUE DE LA FONTAINE - QUARTIER RESIDENTIEL - PROJET IMMOBILIER
SUR UN TERRAIN DE 430 m2 AVEC PERMIS DE CONSTRUIRE DE 4 MAISONS.
Les deux premières maisons sont hors de hors d'air, électricité, plomberie, réalisées. avec chacune trois chambres, salon, cuisine, salle à manger, deux salles d'eau, un garage, et un petit jardin.
Les deux maisons en façade de rue sont à construire. Les micro pieux, les fondations, les réseaux, etc. sont déjà réalisés.

effiCity, l'agence qui estime votre bien en ligne, vous propose ce magnifique projet de construction située dans un quartier prisé de Bagneux, à proximité immédiate du bus et de toutes les commodités.
Nichée sur trois niveaux, ces maison de allie modernité et tranquillité, offrant un cadre de vie idéal pour toute la famille. La luminosité naturelle inonde chaque pièce, créant une atmosphère chaleureuse et conviviale.
Avec une exposition plein sud côté jardin, profitez pleinement du soleil et de la quiétude de ce lieu d'exception.
Ne manquez pas cette opportunité rare dans un quartier recherché de Bagneux. Contactez-nous dès maintenant pour organiser une visite.
Les informations sur les risques auxquels ce bien est exposé sont disponibles sur le site Georisque : georisques. gouv. fr
Alain Dantin - EI - est Agent Commercial mandataire en immobilier, immatriculé au Registre Spécial des Agents Commerciaux du Tribunal de Commerce de Nanterre sous le n°803341312.
Siège social du mandant : effiCity, 48 avenue de Villiers - 75017 PARIS - Société par Actions Simplifiée, société au capital de 132 373,05 euros, immatriculée au RCS Paris 497 617 746 et titulaire de la Carte professionnelle CPI 75[Coordonnées masquées]02 025 - CCI Paris IDF - Caisse de Garantie : GALIAN Assurances 89 rue de la Boétie 75008 Paris
Voir plus

Référence: 181339
Bien en copropriété. Nombre de lots : 2. Charges de copropriété : 233 €.
Honoraires à la charge du vendeur.
Barème des honoraires
DPE
A
B
C
D
E
F
G
GES
A
B
C
D
E
F
G

Prêt immobilier

Vous souhaitez connaître votre capacité d’emprunt et trouver le meilleur crédit immobilier ?
Réaliser une simulation gratuite

Maison à BAGNEUX
Maison à BAGNEUX
Maison à BAGNEUX
Maison à BAGNEUX
Maison à BAGNEUX
Maison à BAGNEUX
Maison à BAGNEUX
Ce site est protégé par reCAPTCHA la Politique de confidentialité et les Conditions d’utilisation de Google s’appliquent.
Obtenir un prêt immobilier au meilleur taux ?

En poursuivant votre navigation sans modifier vos paramètres, vous acceptez l'utilisation de cookies susceptibles de réaliser des statistiques de visite. Cliquez ici pour plus d'informations