Paris 3e - marais

— Paris-3e 75003 —
745 000 €
76 m²
3 pièces

PARIS 3e - COEUR DU MARAIS

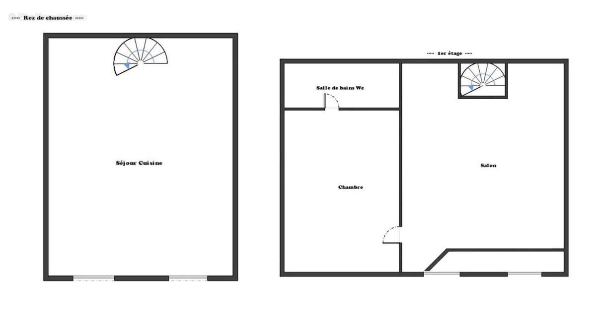
Situé rue du Parc Royal, entre la Place des Vosges et le Musée Picasso, comme une maison, appartement en duplex donnant sur jardin, plein de charme à l'écart des bruits de la ville.

Ce bien de 75,90m2 est composé d'un séjour avec cuisine de 30m2 donnant sur le jardin. A l'étage, un salon de 23m2 (pouvant être transformé en 2ème chambre), et une chambre de 16m2 avec sa salle de bains et WC.

Au sein d'une des plus prestigieuses copropriétés du Marais datant du XVIe siècle, aux sublimes parties communes, découvrez un lieu historique niché dans un écrin de verdure.

DPE E / Charges : 265€ par mois
Voir plus

Référence: 85906643
DPE
A
B
C
D
E
F
G
GES
A
B
C
D
E
F
G

Prêt immobilier

Vous souhaitez connaître votre capacité d’emprunt et trouver le meilleur crédit immobilier ?
Réaliser une simulation gratuite

Appartement à PARIS-3E
Appartement à PARIS-3E
Appartement à PARIS-3E
Appartement à PARIS-3E
Appartement à PARIS-3E
Appartement à PARIS-3E
Appartement à PARIS-3E
Appartement à PARIS-3E
Appartement à PARIS-3E
Appartement à PARIS-3E
Appartement à PARIS-3E
Appartement à PARIS-3E
Ce site est protégé par reCAPTCHA la Politique de confidentialité et les Conditions d’utilisation de Google s’appliquent.
Obtenir un prêt immobilier au meilleur taux ?

En poursuivant votre navigation sans modifier vos paramètres, vous acceptez l'utilisation de cookies susceptibles de réaliser des statistiques de visite. Cliquez ici pour plus d'informations